Plan No.268661
Spacious Vaulted Screened Porch
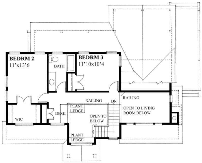
The living and dining rooms boast a two storey vaulted ceiling (17’0” high) and rear facing French doors opening into a spacious vaulted screened porch. The Master suite and bath is designed to be wheelchair accessible including a curb less shower and access to the rear screened porch through French doors. The second level has two additional bedrooms with a shared bathroom and desk space overlooking the front entry. Plans are designed with the furnace located in the crawl space foundation.
Specifications
Total 1668 sq ft
- Main: 1108
- Second: 560
- Third: 0
- Loft/Bonus: 0
- Basement: 0
- Garage: 0
Rooms
- Beds: 3
- Baths: 2
- 1/2 Bath: 1
- 3/4 Bath: 0
Ceiling Height
- Main: 8'0
- Second: 8'0
- Third:
- Loft/Bonus:
- Basement:
- Garage:
Details
- Exterior Walls: 2x6
- Garage Type:
- Width: 48'0
- Depth: 41'0
Roof
- Max Ridge Height: 28'0
- Comments: (Add 6' to width for deck)
- Primary Pitch: 10/12
- Secondary Pitch: 5/12
Add to Cart
Pricing
– westhomeplanners.com
– westhomeplanners.com
– westhomeplanners.com
[Back to Search Results]

833–493–0942

