Plan No.512000
Leisure Home With Lots Of Extras
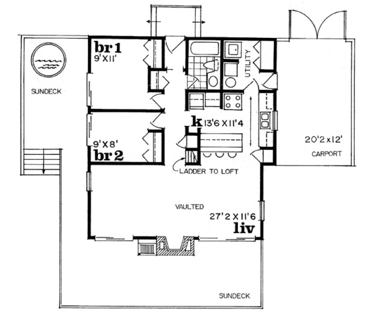
This space-efficient leisure home offers many extras. Adding the optional carport adds an extra 12 feet to the width of the home. The sundeck wraps around two sides and features a built-in barbecue and hot tub. The living room boasts a soaring vaulted ceiling, a large fireplace, and sliding glass doors to the sundeck. The galley-style kitchen has a breakfast bar that connects it to the living area. Two bedrooms on the first level share the use of a full bath. A ladder reaches to the loft area, which could work as additional bedroom space.
Specifications
Total 936 sq ft
- Main: 936
- Second: 0
- Third: 0
- Loft/Bonus: 360
- Basement: 0
- Garage: 0
Rooms
- Beds: 2
- Baths: 1
- 1/2 Bath: 0
- 3/4 Bath: 0
Ceiling Height
- Main: 8'0
- Second:
- Third:
- Loft/Bonus:
- Basement:
- Garage:
Details
- Exterior Walls: 2x4
- Garage Type: singleCarport
- Width: 30'0
- Depth: 32'0
Roof
- Max Ridge Height: 25'0
- Comments: (Main Fl to Peak)
- Primary Pitch: 6/12
- Secondary Pitch: 0/12
Add to Cart
Pricing
– westhomeplanners.com
– westhomeplanners.com
– westhomeplanners.com
[Back to Search Results]

833–493–0942

