Plan No.171211
Lovely Cottage
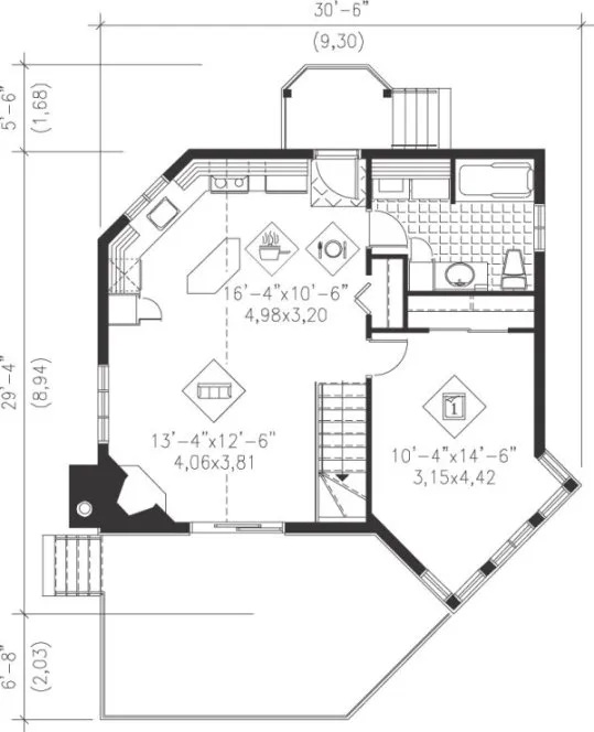
This lovely cottage will be most appreciated for its many windows and large deck. The house is 30 feet 6 inches wide by 29 feet 4 inches deep and provides 696 square feet of living space. The open area home includes a kitchen with an island and a dining area, a living room with a fireplace, a bedroom and a bathroom.
Specifications
Total 696 sq ft
- Main: 696
- Second: 0
- Third: 0
- Loft/Bonus: 0
- Basement: 696
- Garage: 0
Rooms
- Beds: 1
- Baths: 1
- 1/2 Bath: 0
- 3/4 Bath: 0
Ceiling Height
- Main: 8'0
- Second:
- Third:
- Loft/Bonus:
- Basement: 8'0
- Garage:
Details
- Exterior Walls: 2x6
- Garage Type:
- Width: 30'6
- Depth: 29'4
Roof
- Max Ridge Height: 25'4
- Comments: ()
- Primary Pitch: 0/12
- Secondary Pitch: 0/12
Add to Cart
Pricing
– westhomeplanners.com
– westhomeplanners.com
[Back to Search Results]

833–493–0942
