Plan No.312241
Beauty & Style
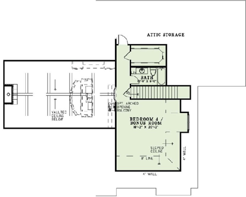
Beauty and style are found throughout this rustic plan. Stone, brick, and shake siding blend seamlessly on the exterior while timber beams grace the covered front porch in the gable and columns with stone bases. Inside you’ll find a beautiful Great Room with more timber beams in the vaulted ceiling and a fireplace for cold evenings. French Doors open to a large Outdoor Living/Grilling Porch complete with a fireplace as well. The Master Suite offers solitude and privacy with a relaxing corner whirlpool tub, a large glass shower with seats and a huge walk-in closet. On the other side of the Great Room are 2 more bedrooms, each with ample walk-in closets and a shared full bath. Over the garage, more options await with the 4th Bedroom/Bonus Room and full bath and walk-in closet.
Specifications
Total 2340 sq ft
- Main: 2340
- Second: 0
- Third: 0
- Loft/Bonus: 602
- Basement: 0
- Garage: 0
Rooms
- Beds: 4
- Baths: 3
- 1/2 Bath: 1
- 3/4 Bath: 0
Ceiling Height
- Main: 9'0
- Second:
- Third:
- Loft/Bonus: 8'0
- Basement:
- Garage:
Details
- Exterior Walls: 2x4
- Garage Type: tripleGarage
- Width: 82'0
- Depth: 62'0
Roof
- Max Ridge Height: 33'0
- Comments: (Main Fl to Peak)
- Primary Pitch: 12/12
- Secondary Pitch: 0/12

833–493–0942






