Plan No.338071
Narrow Lot Home With Loft
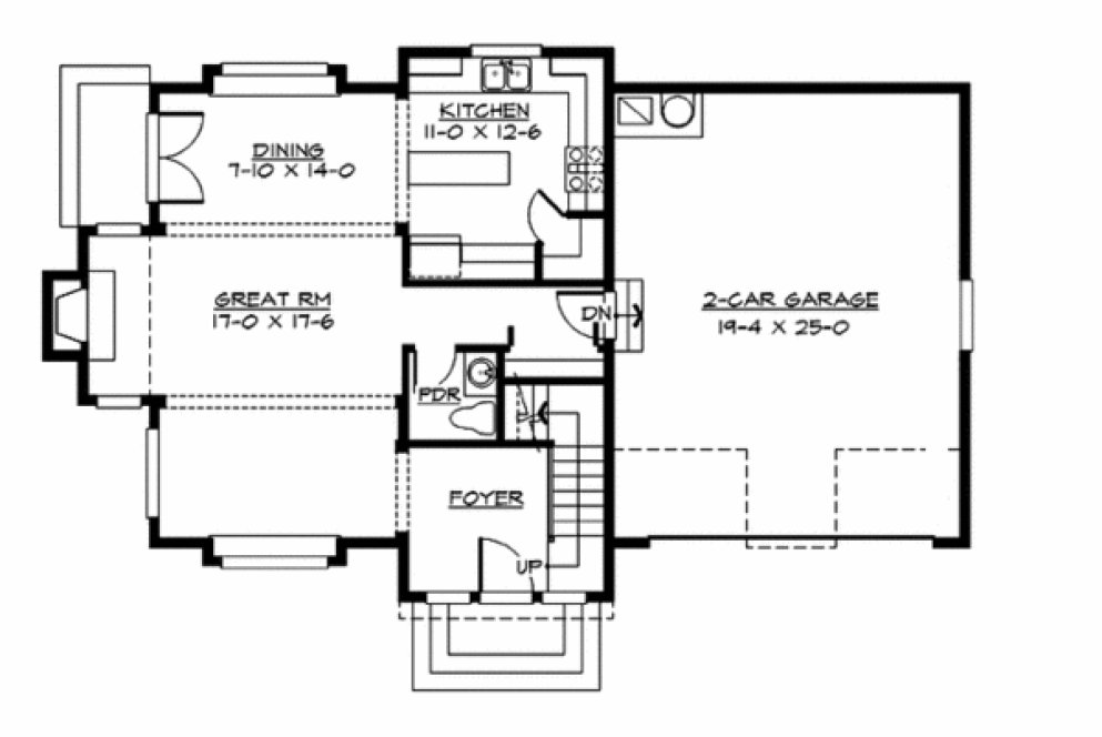
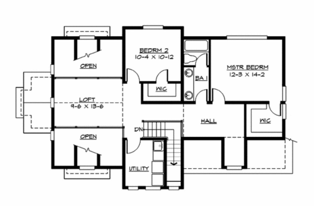
This home features loft bonus space upstairs, a great room, a second floor laundry room and a secluded second floor master suite.
Specifications
Total 1751 sq ft
- Main: 792
- Second: 959
- Third: 0
- Loft/Bonus: 0
- Basement: 0
- Garage: 526
Rooms
- Beds: 2
- Baths: 1
- 1/2 Bath: 1
- 3/4 Bath: 0
Ceiling Height
- Main: 8'0
- Second: 9'0
- Third:
- Loft/Bonus:
- Basement:
- Garage:
Details
- Exterior Walls: 2x6
- Garage Type: doubleGarage
- Width: 50'0
- Depth: 30'0
Roof
- Max Ridge Height: 25'6
- Comments: ()
- Primary Pitch: 12/12
- Secondary Pitch: 8/12
Add to Cart
Pricing
– westhomeplanners.com
– westhomeplanners.com
– westhomeplanners.com
– westhomeplanners.com
[Back to Search Results]

833–493–0942


