Plan No.224249
Wonderful Windows
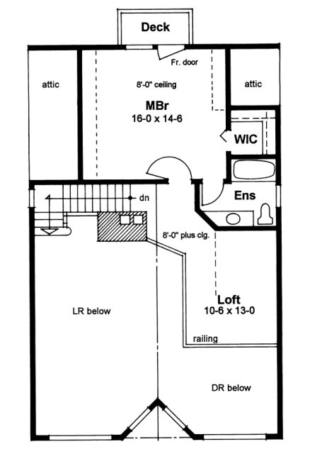
The wall of windows at the front of this design let in plenty of sunshine and will let you enjoy the view. Upstairs, the master bedroom has a private deck, and the loft is a great place for visitors or kids to camp out.
Specifications
Total 1755 sq ft
- Main: 1208
- Second: 0
- Third: 0
- Loft/Bonus: 547
- Basement: 0
- Garage: 0
Rooms
- Beds: 3
- Baths: 2
- 1/2 Bath: 0
- 3/4 Bath: 0
Ceiling Height
- Main: 8'0
- Second:
- Third:
- Loft/Bonus: 8'0
- Basement:
- Garage:
Details
- Exterior Walls: 2x6
- Garage Type:
- Width: 36'0
- Depth: 50'0
Roof
- Max Ridge Height: 27'0
- Comments: ()
- Primary Pitch: 13/12
- Secondary Pitch: 0/12
Add to Cart
Pricing
– westhomeplanners.com
– westhomeplanners.com
– westhomeplanners.com
– westhomeplanners.com
[Back to Search Results]

833–493–0942


