Plan No.334881
A Beautiful Bungalow with a Family Friendly Plan
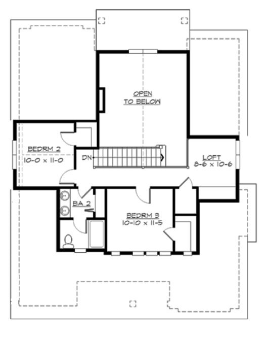
This plan elegantly combines historically expressive forms and details with a modern floor plan perfect for today’s lifestyle. The two-story great room is the heart of the plan, adjacent to the dramatic stair, climbing to the overlook loft and open balcony accessing the secondary bedrooms and bath. The chef’s kitchen and nook complete the open family living area. The private master suite is conveniently located off the great room, with a dining space and work-at-home den completing the layout.
Specifications
Total 1884 sq ft
- Main: 1279
- Second: 605
- Third: 0
- Loft/Bonus: 0
- Basement: 0
- Garage: 410
Rooms
- Beds: 3
- Baths: 2
- 1/2 Bath: 1
- 3/4 Bath: 0
Ceiling Height
- Main: 9'0
- Second: 8'0
- Third:
- Loft/Bonus:
- Basement:
- Garage:
Details
- Exterior Walls: 2x6
- Garage Type: doubleGarage
- Width: 38'0
- Depth: 51'0
Roof
- Max Ridge Height: 24'0
- Comments: ()
- Primary Pitch: 8/12
- Secondary Pitch: 4/12
Add to Cart
Pricing
– westhomeplanners.com
– westhomeplanners.com
– westhomeplanners.com
Rear Rendering – westhomeplanners.com
– westhomeplanners.com
– westhomeplanners.com
– westhomeplanners.com
[Back to Search Results]

833–493–0942





