Plan No.280291
Spacious Single Level Home with Bonus Room
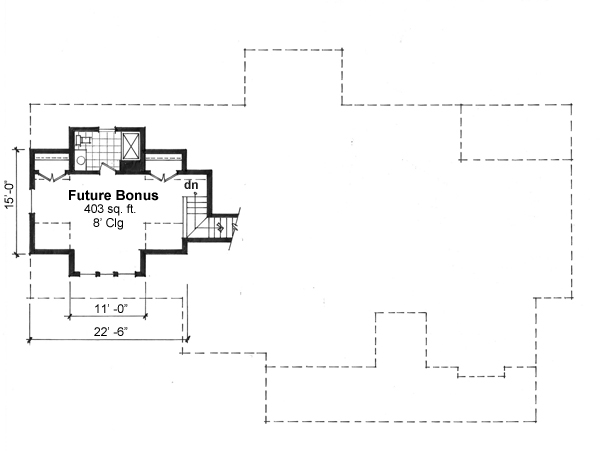
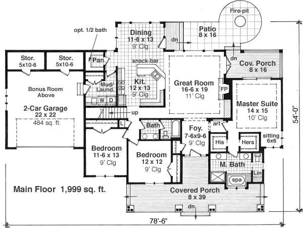
This open and spacious home features a secluded main level master bedroom with his and her walk in closets as well as a bonus room above the garage with windows on facing the front and rear.
Specifications
Total 1999 sq ft
- Main: 1999
- Second: 0
- Third: 0
- Loft/Bonus: 403
- Basement: 0
- Garage: 484
Rooms
- Beds: 3
- Baths: 2
- 1/2 Bath: 0
- 3/4 Bath: 1
Ceiling Height
- Main: 9'0
- Second:
- Third:
- Loft/Bonus: 8'0
- Basement:
- Garage:
Details
- Exterior Walls: 2x6
- Garage Type: doubleGarage
- Width: 78'6
- Depth: 54'0
Roof
- Max Ridge Height: 26'6
- Comments: (Main Floor to Peak)
- Primary Pitch: 9/12
- Secondary Pitch: 0/12
Add to Cart
Pricing
Full Rendering – westhomeplanners.com
MAIN Plan – westhomeplanners.com
SECOND Plan – westhomeplanners.com
REAR Elevation – westhomeplanners.com
[Back to Search Results]

833–493–0942


