Plan No.339691
Farm Style Bungalow With a Loft
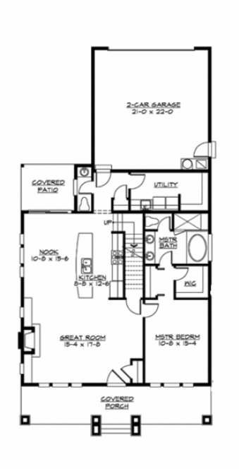
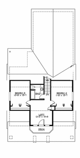
This home features a secluded master suite on the main floor, two bedrooms and a full bath on the second floor as well as a loft.
Specifications
Total 1969 sq ft
- Main: 1318
- Second: 651
- Third: 0
- Loft/Bonus: 0
- Basement: 0
- Garage: 495
Rooms
- Beds: 3
- Baths: 2
- 1/2 Bath: 1
- 3/4 Bath: 0
Ceiling Height
- Main: 9'0
- Second: 8'0
- Third:
- Loft/Bonus:
- Basement:
- Garage:
Details
- Exterior Walls: 2x6
- Garage Type: doubleGarage
- Width: 35'0
- Depth: 69'0
Roof
- Max Ridge Height: 24'0
- Comments: ()
- Primary Pitch: 10/12
- Secondary Pitch: 8/12
Add to Cart
Pricing
– westhomeplanners.com
– westhomeplanners.com
– westhomeplanners.com
– westhomeplanners.com
[Back to Search Results]

833–493–0942


