Plan No.332558
Old World charm and grace in a compact affordable design
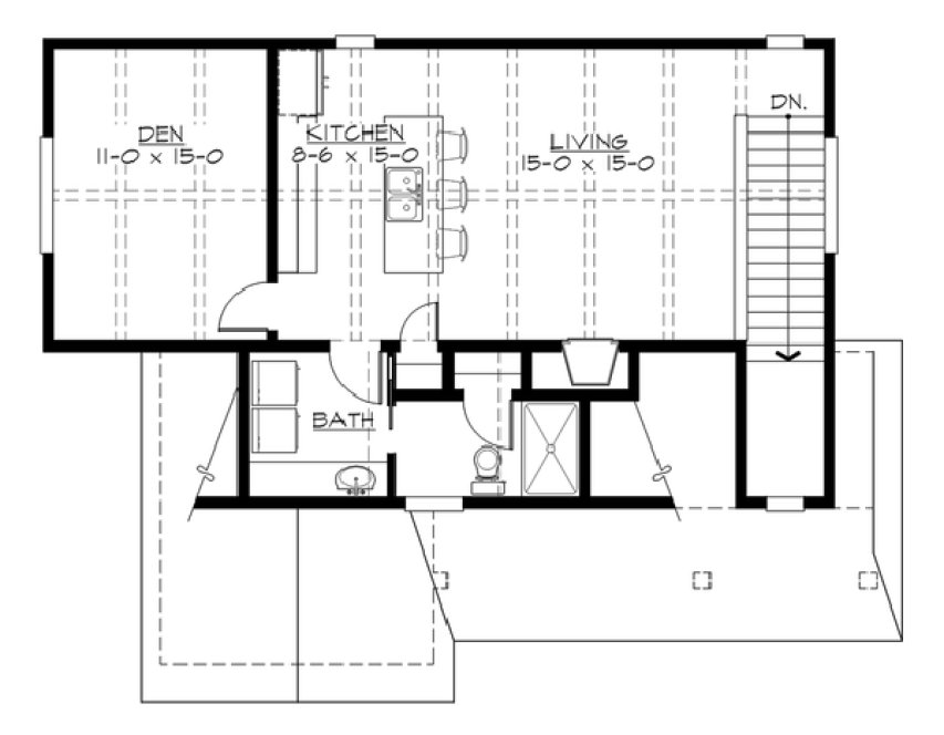
The open floor plan allows you to express yourself in this compact design. Suitable for a above garage apartment or a small home.
Specifications
Total 855 sq ft
- Main: 120
- Second: 735
- Third: 0
- Loft/Bonus: 0
- Basement: 0
- Garage: 875
Rooms
- Beds: 1
- Baths: 1
- 1/2 Bath: 0
- 3/4 Bath: 0
Ceiling Height
- Main: 9'0
- Second: 8'0
- Third:
- Loft/Bonus:
- Basement:
- Garage:
Details
- Exterior Walls: 2x6
- Garage Type: doubleGarage
- Width: 42'6
- Depth: 32'0
Roof
- Max Ridge Height: 27'6
- Comments: ()
- Primary Pitch: 12/12
- Secondary Pitch: 4/12
Add to Cart
Pricing
– westhomeplanners.com
– westhomeplanners.com
– westhomeplanners.com
ALT Rendering – westhomeplanners.com
[Back to Search Results]

833–493–0942


