Plan No.331097
Affordable design with bonus space and a loft
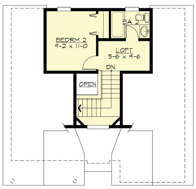
Compact and affordable, this plan has all the character of a much larger home. Featuring two full bathrooms, a front entry porch and a loft, this is a great choice for a vacation home or year round living.
Specifications
Total 790 sq ft
- Main: 554
- Second: 0
- Third: 0
- Loft/Bonus: 236
- Basement: 0
- Garage: 390
Rooms
- Beds: 2
- Baths: 2
- 1/2 Bath: 0
- 3/4 Bath: 0
Ceiling Height
- Main: 9'0
- Second:
- Third:
- Loft/Bonus: 8'0
- Basement:
- Garage:
Details
- Exterior Walls: 2x6
- Garage Type: singleGarage
- Width: 32'0
- Depth: 32'0
Roof
- Max Ridge Height: 20'6
- Comments: ()
- Primary Pitch: 8/12
- Secondary Pitch: 4/12
Add to Cart
Pricing
– westhomeplanners.com
– westhomeplanners.com
– westhomeplanners.com
– westhomeplanners.com
– westhomeplanners.com
FRONT Elevation – westhomeplanners.com
SIDE Rendering – westhomeplanners.com
[Back to Search Results]

833–493–0942





