Plan No.344283
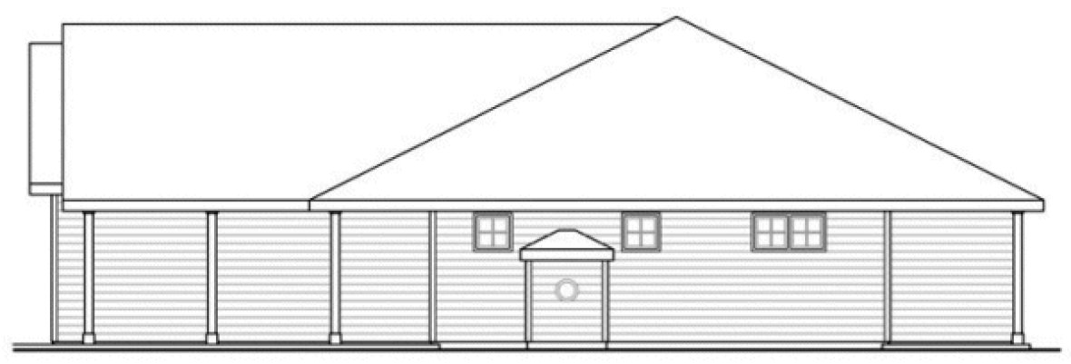
Traditional Country Charm
This compact ranch-style home exudes a measure of traditional country charm, while being fairly inexpensive to build and maintain. A conversation bar fronts the kitchen's long work island, which doubles as a dining room buffet. Standing at the kitchen sink, you can keep tabs on the porch and rear yard, while staying attuned to indoor activities.
Specifications
Total 1369 sq ft
- Main: 1369
- Second: 0
- Third: 0
- Loft/Bonus: 279
- Basement: 0
- Garage: 506
Rooms
- Beds: 3
- Baths: 2
- 1/2 Bath: 0
- 3/4 Bath: 0
Ceiling Height
- Main: 8'0
- Second:
- Third:
- Loft/Bonus: 8'0
- Basement:
- Garage:
Details
- Exterior Walls: 2x6
- Garage Type:
- Width: 44'0
- Depth: 59'0
Roof
- Max Ridge Height: 20'4
- Comments: (Main Floor to Peak)
- Primary Pitch: 8/12
- Secondary Pitch: 0/12
Add to Cart
Pricing
– westhomeplanners.com
– westhomeplanners.com
– westhomeplanners.com
Opt. Basement Plan – westhomeplanners.com
– westhomeplanners.com
– westhomeplanners.com
– westhomeplanners.com
Artists Sketch – westhomeplanners.com
[Back to Search Results]

833–493–0942






