Plan No.195336
Sunbelt style hillside home with walk-out basement
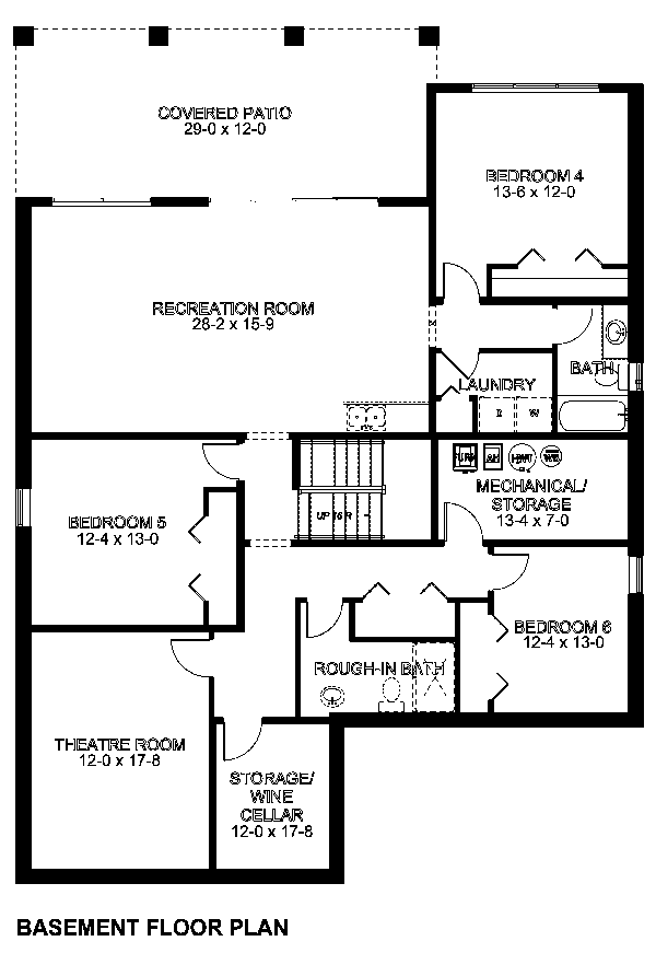
This comfortable hillside home features open living areas, large bedrooms, and is ideal for taking advantage of views from the rear of the home. The basement is designed to allow for future basement suite development. 2X4 EXTERIOR WALLS $150.00
Specifications
Total 1983 sq ft
- Main: 1983
- Second: 0
- Third: 0
- Loft/Bonus: 0
- Basement: 1969
- Garage: 504
Rooms
- Beds: 6
- Baths: 4
- 1/2 Bath: 1
- 3/4 Bath: 0
Ceiling Height
- Main: 9'0
- Second:
- Third:
- Loft/Bonus:
- Basement: 9'0
- Garage: 10'6
Details
- Exterior Walls: 2x6
- Garage Type: doubleGarage
- Width: 44'0
- Depth: 71'0
Roof
- Max Ridge Height: 31'0
- Comments: ()
- Primary Pitch: 6/12
- Secondary Pitch: 0/12
Add to Cart
Pricing
Full Rendering – westhomeplanners.com
MAIN Plan – westhomeplanners.com
BASEMENT Plan – westhomeplanners.com
REAR Elevation – westhomeplanners.com
LEFT Elevation – westhomeplanners.com
RIGHT Elevation – westhomeplanners.com
FRONT Elevation – westhomeplanners.com
[Back to Search Results]

833–493–0942





