Plan No.195296
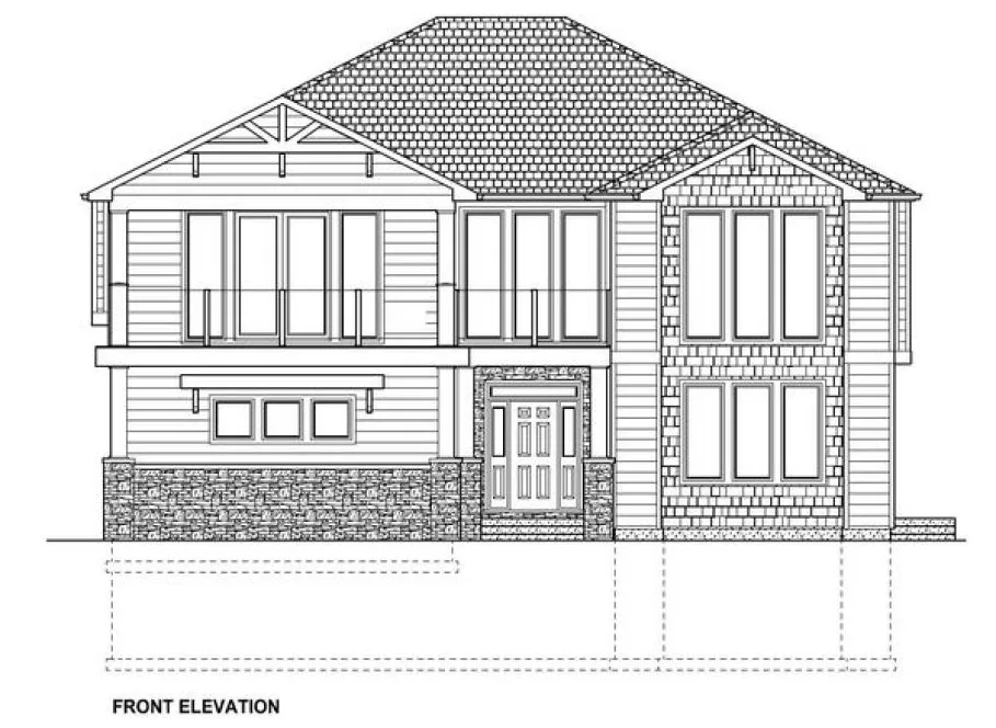
Spacious Modern Home With Full Inlaw Suite
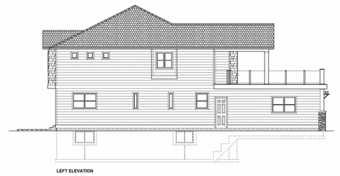
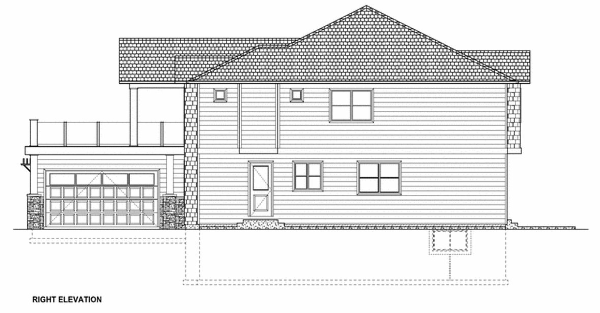
This inviting family home features large open living areas, a covered deck and sun deck, a full master suite with his and hers walk-in closets, and ample bonus space in the lower floor and basement. An optional secondary in-law suite is designed into the home or may be left as additional bedrooms and a family room for the main house.
Specifications
Total 4053 sq ft
- Main: 2010
- Second: 2043
- Third: 0
- Loft/Bonus: 0
- Basement: 2010
- Garage: 588
Rooms
- Beds: 5
- Baths: 4
- 1/2 Bath: 0
- 3/4 Bath: 0
Ceiling Height
- Main: 9'0
- Second: 9'0
- Third:
- Loft/Bonus:
- Basement: 8'0
- Garage: 10'4
Details
- Exterior Walls: 2x6
- Garage Type: doubleGarage
- Width: 48'0
- Depth: 68'0
Roof
- Max Ridge Height: 32'2
- Comments: ()
- Primary Pitch: 6/12
- Secondary Pitch: 0/12
Add to Cart
Pricing
– westhomeplanners.com
– westhomeplanners.com
– westhomeplanners.com
– westhomeplanners.com
– westhomeplanners.com
– westhomeplanners.com
– westhomeplanners.com
FRONT Elevation – westhomeplanners.com
[Back to Search Results]

833–493–0942






