Plan No.552592
Specifications
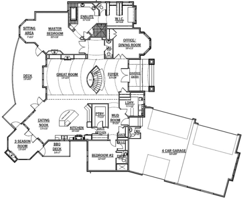
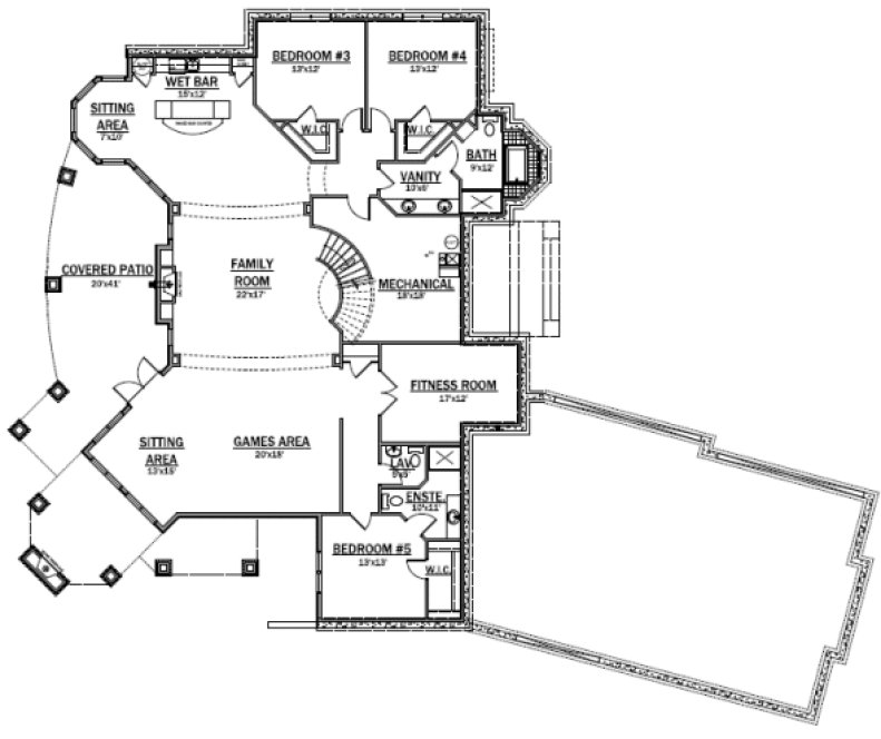
Total 5464 sq ft
- Main: 2952
- Second: 0
- Third: 0
- Loft/Bonus: 0
- Basement: 2512
- Garage: 1373
Rooms
- Beds: 5
- Baths: 3
- 1/2 Bath: 3
- 3/4 Bath: 2
Ceiling Height
- Main: 10'0-12'0
- Second:
- Third:
- Loft/Bonus:
- Basement:
- Garage:
Details
- Exterior Walls: 2x6
- Garage Type: fourGarage
- Width: 87'0
- Depth: 106'0
Roof
- Max Ridge Height: 28'6
- Comments: (Main Floor to Peak)
- Primary Pitch: 8/12
- Secondary Pitch: 0/12
Add to Cart
Pricing
– westhomeplanners.com
– westhomeplanners.com
– westhomeplanners.com
– westhomeplanners.com
Front Elevation – westhomeplanners.com
[Back to Search Results]

833–493–0942



