Plan No.210222
Many Amenities
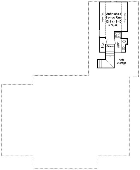
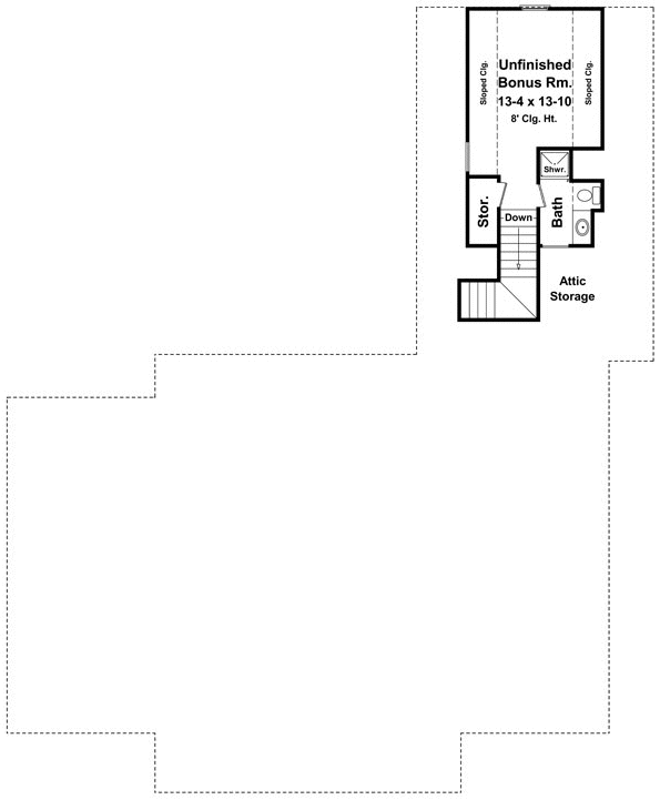
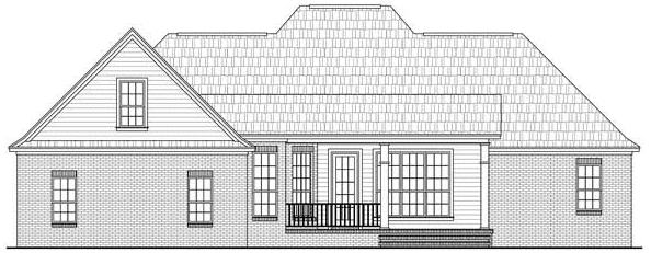
This well-designed plan provides many amenities that you would expect to find in a much larger home. The master suite features a wonderful bathroom with large walk-in closets. The great room has gas logs as well as built-in cabinets and 12' trayed ceilings that make it a great place to relax and spend time with family and friends. The rear covered porch provides a great space for those summer cookouts as well as being close to the kitchen. A dining room and breakfast area are provided for formal or informal meals. The always popular bonus room provides an excellent space for storage or future expansion. The two car garage features space for real-sized vehicles. This plan is the perfect solution to your family's needs.
Specifications
Total 2200 sq ft
- Main: 2200
- Second: 0
- Third: 0
- Loft/Bonus: 0
- Basement: 0
- Garage: 0
Rooms
- Beds: 4
- Baths: 2
- 1/2 Bath: 1
- 3/4 Bath: 1
Ceiling Height
- Main: 9'0
- Second:
- Third:
- Loft/Bonus:
- Basement:
- Garage:
Details
- Exterior Walls: 2x4
- Garage Type: doubleGarage
- Width: 66'0
- Depth: 80'0
Roof
- Max Ridge Height: 24'0
- Comments: ()
- Primary Pitch: 8/12
- Secondary Pitch: 0/12
Add to Cart
Pricing
– westhomeplanners.com
– westhomeplanners.com
– westhomeplanners.com
– westhomeplanners.com
– westhomeplanners.com
– westhomeplanners.com
[Back to Search Results]

833–493–0942




