Plan No.552163
Specifications
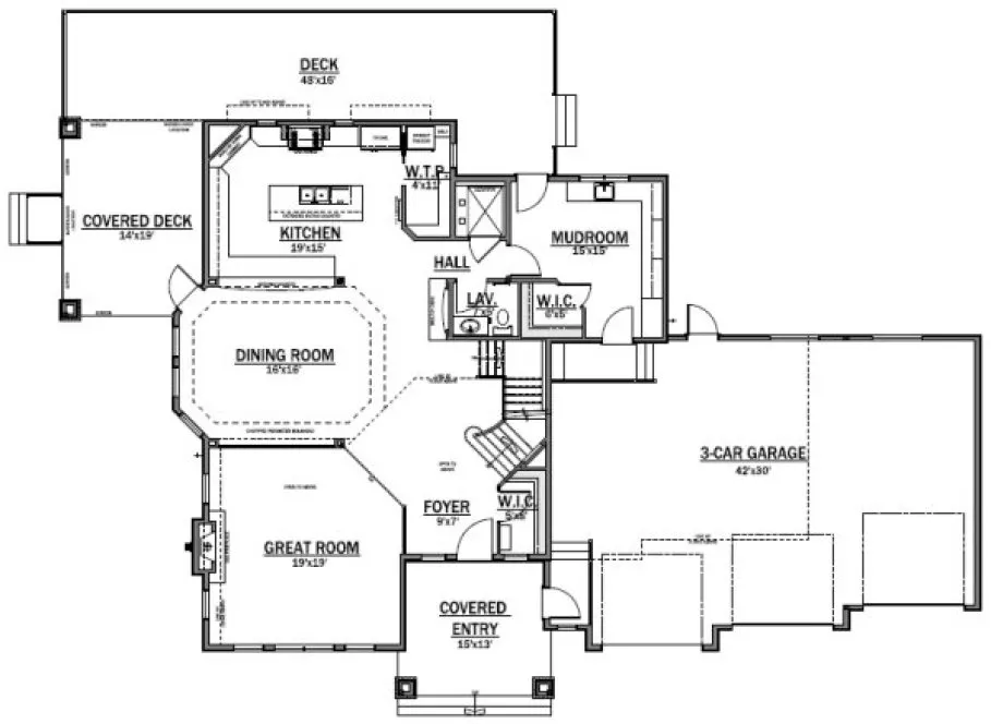
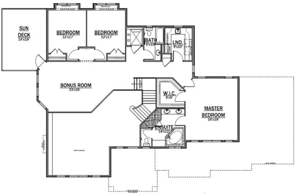
Total 3612 sq ft
- Main: 1856
- Second: 1756
- Third: 0
- Loft/Bonus: 0
- Basement: 1468
- Garage: 1267
Rooms
- Beds: 3
- Baths: 2
- 1/2 Bath: 1
- 3/4 Bath: 0
Ceiling Height
- Main: 9'0
- Second: 9'0
- Third:
- Loft/Bonus:
- Basement: 8'0
- Garage:
Details
- Exterior Walls: 2x6
- Garage Type: tripleGarage
- Width: 96'0
- Depth: 70'0
Roof
- Max Ridge Height: 32'4
- Comments: (Main Floor to Peak)
- Primary Pitch: 6/12
- Secondary Pitch: 0/12
Add to Cart
Pricing
– westhomeplanners.com
– westhomeplanners.com
– westhomeplanners.com
Alt. Front Rendering – westhomeplanners.com
Front Left Rendering – westhomeplanners.com
Front Elevation – westhomeplanners.com
[Back to Search Results]

833–493–0942




