Plan No.246434
Slab foundation standard, available Crawlspace foundation and Basement foundation (unfinished) $150.00, 2 x 4 stud construction (can be changed to 2x6 for a fee of $250.00), common frame roof (30/20 load design) with a note option for Roof Trusses. The ceiling heights and room sizes are shown on the artist floorplan. Plans can also be sent to the customer in PDF or CAD (SoftPlan, DWG or DXF)
Specifications
Total 1810 sq ft
- Main: 1810
- Second: 0
- Third: 0
- Loft/Bonus: 0
- Basement: 0
- Garage: 655
Rooms
- Beds: 3
- Baths: 2
- 1/2 Bath: 0
- 3/4 Bath: 0
Ceiling Height
- Main: 9'0
- Second:
- Third:
- Loft/Bonus:
- Basement:
- Garage:
Details
- Exterior Walls: 2x4
- Garage Type: tripleGarage
- Width: 52'0
- Depth: 65'10
Roof
- Max Ridge Height: 25'0
- Comments: ()
- Primary Pitch: 10/12
- Secondary Pitch: 8/12
Add to Cart
Pricing
Full Rendering – westhomeplanners.com
MAIN Plan – westhomeplanners.com
Alt. Rendering – westhomeplanners.com
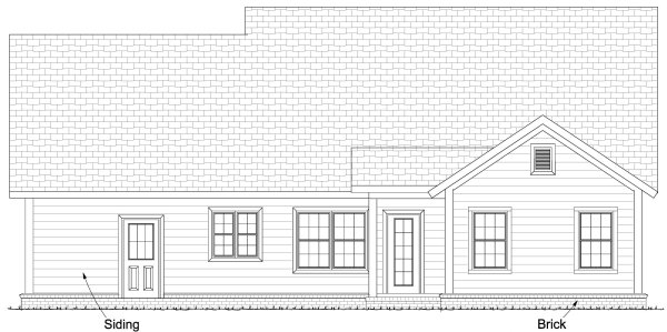
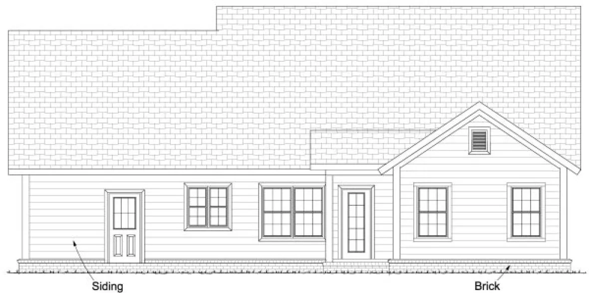
REAR Elevation – westhomeplanners.com
[Back to Search Results]

833–493–0942


