Plan No.571030
Versatile Hillside Charmer
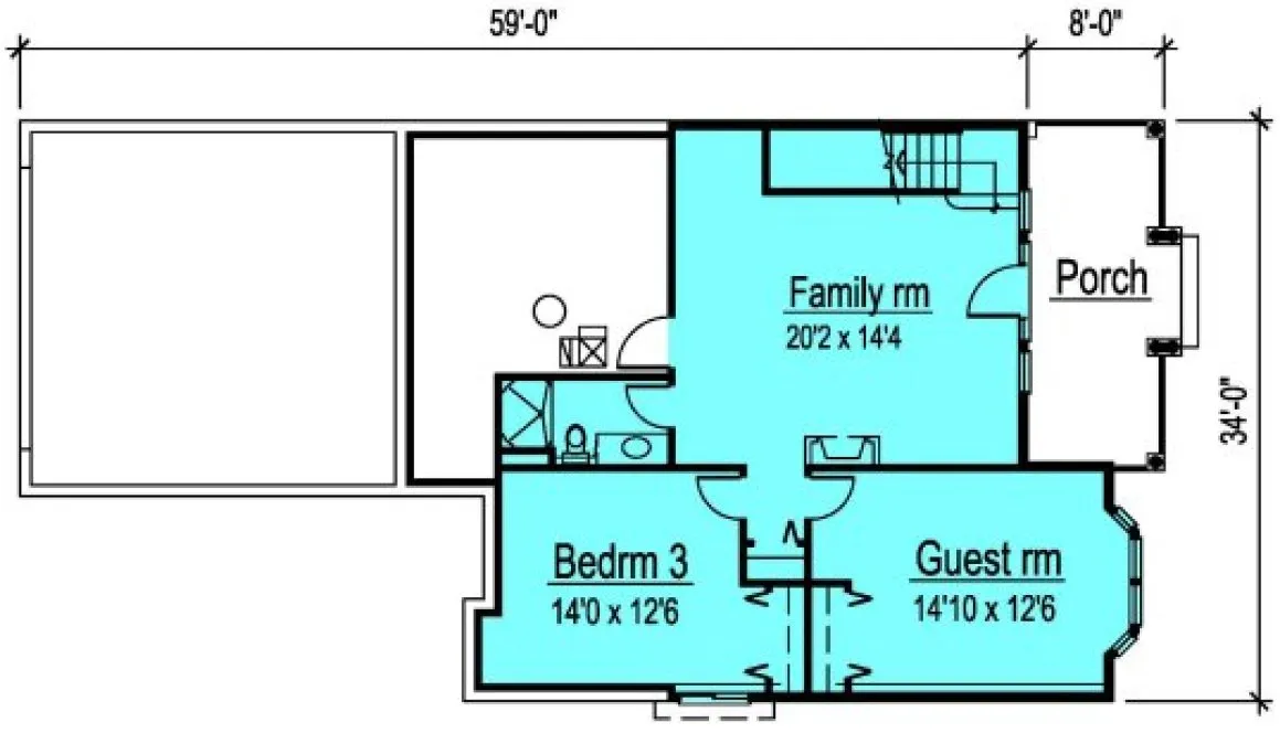
This versatile basement entry or hillside rancher style house plan offers curb appeal on both front and rear elevations, perfect for a hillside lot with exposure to two streets.
Specifications
Total 2056 sq ft
- Main: 1293
- Second: 0
- Third: 0
- Loft/Bonus: 0
- Basement: 763
- Garage: 484
Rooms
- Beds: 4
- Baths: 2
- 1/2 Bath: 0
- 3/4 Bath: 1
Ceiling Height
- Main: 9'0
- Second:
- Third:
- Loft/Bonus:
- Basement: 8'0
- Garage:
Details
- Exterior Walls: 2x6
- Garage Type: doubleGarage
- Width: 34'0
- Depth: 67'0
Roof
- Max Ridge Height:
- Comments: ()
- Primary Pitch: 8/12
- Secondary Pitch: 0/12
Add to Cart
Pricing
– westhomeplanners.com
– westhomeplanners.com
– westhomeplanners.com
– westhomeplanners.com
[Back to Search Results]

833–493–0942


