Plan No.570030
Impressive Entrance Porch
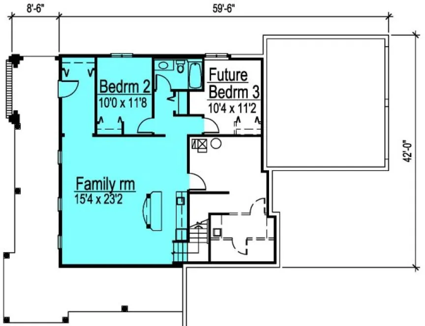
A 'Victorian’ style hillside rancher with 10’ high walls on the Main floor and 9’ high walls on the Lower floor. Coffered and vaulted ceilings are featured in the main living areas. This house is designed for a hillside view lot with Lower floor entry which would make for a great rental or in-law suite. There is a covered wrap around patio on the Lower floor. An Office on the Main floor next to the Foyer would be great for home businesses. A wrap around open sundeck off the Main floor provides plenty of space for outdoor living. There is a Family room with wet bar on Lower floor. Some other popular features are large well-appointed Ensuite with see-through gas fireplace off the Master Suite, a cozy Master sitting area, and a Walk-in pantry in the Kitchen.
Specifications
Total 2506 sq ft
- Main: 1585
- Second: 0
- Third: 0
- Loft/Bonus: 0
- Basement: 921
- Garage: 541
Rooms
- Beds: 3
- Baths: 2
- 1/2 Bath: 1
- 3/4 Bath: 0
Ceiling Height
- Main: 10'0
- Second:
- Third:
- Loft/Bonus:
- Basement: 9'0
- Garage:
Details
- Exterior Walls: 2x6
- Garage Type: doubleGarage
- Width: 52'0
- Depth: 67'6
Roof
- Max Ridge Height:
- Comments: ()
- Primary Pitch: 8/12
- Secondary Pitch: 0/12

833–493–0942


