Plan No.345105
Melding Indoor and Outdoor Living
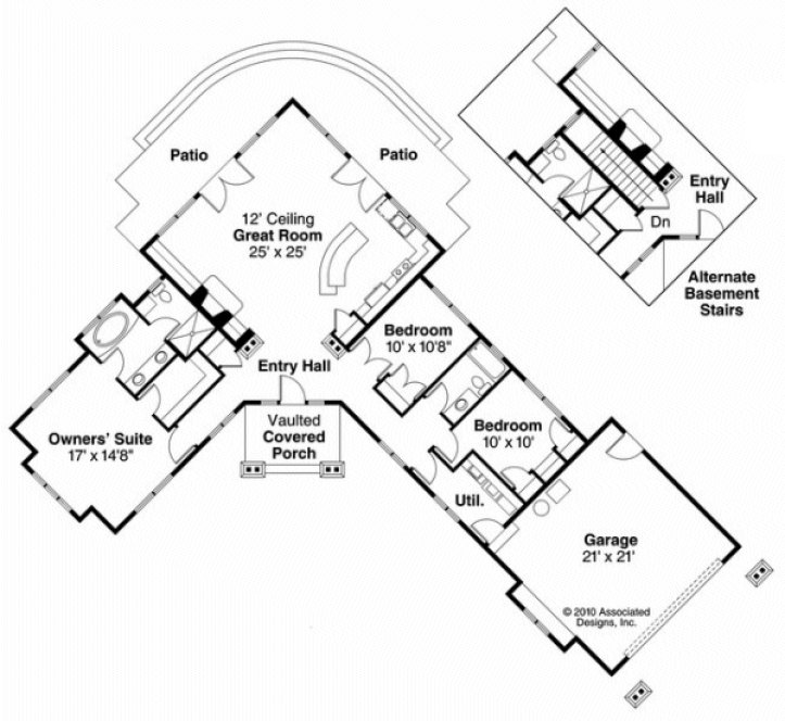
Natural materials cover the exterior and natural light bathes the interior, thus connecting the inside living areas with this ranch home plan's surroundings. In the expansive great room at its heart, the kitchen is laid out along one wall, while a home entertainment center and fireplace line another. Glass in windows and doors fills most of the two exterior walls.
Specifications
Total 1709 sq ft
- Main: 1709
- Second: 0
- Third: 0
- Loft/Bonus: 0
- Basement: 0
- Garage: 495
Rooms
- Beds: 3
- Baths: 2
- 1/2 Bath: 0
- 3/4 Bath: 0
Ceiling Height
- Main:
- Second:
- Third:
- Loft/Bonus:
- Basement:
- Garage:
Details
- Exterior Walls: 2x6
- Garage Type: doubleGarage
- Width: 90'7
- Depth: 72'3
Roof
- Max Ridge Height: 20'10
- Comments: ()
- Primary Pitch: 6/12
- Secondary Pitch: 0/12
Add to Cart
Pricing
– westhomeplanners.com
– westhomeplanners.com
– westhomeplanners.com
– westhomeplanners.com
– westhomeplanners.com
[Back to Search Results]

833–493–0942



