Plan No.210412
Covered Porches
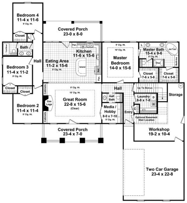
This inviting Craftsman home is packed with great features. The front and rear covered porches add plenty of usable outdoor living space. Expansive great room includes a beautiful trayed ceiling as well as built-in cabinets and a gas fireplace. The spacious kitchen features an oversized island with a large eating bar and breakfast area. The hall bath is equipped with dual lavatories for convenience. The master bedroom has a raised ceiling and opens into the well-equipped bath with dual lavatories, oversized corner jet tub, and large his and her walk-in closets. There is a workshop area off the garage for projects and storage. The media/hobby space is perfect for a home office. There is also a full basement option that could be used for additional storage or future expansion. This is a very flexible home with plenty of options to choose from. Make this your family's next home!
Specifications
Total 2140 sq ft
- Main: 2140
- Second: 0
- Third: 0
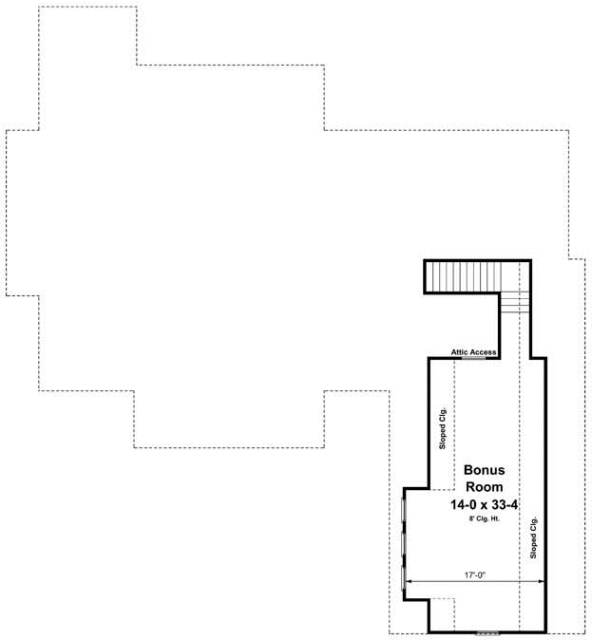
- Loft/Bonus: 541
- Basement: 0
- Garage: 0
Rooms
- Beds: 4
- Baths: 2
- 1/2 Bath: 1
- 3/4 Bath: 0
Ceiling Height
- Main: 9'0
- Second:
- Third:
- Loft/Bonus: 8'0
- Basement:
- Garage:
Details
- Exterior Walls: 2x4
- Garage Type: doubleGarage
- Width: 71'0
- Depth: 77'0
Roof
- Max Ridge Height: 23'0
- Comments: ()
- Primary Pitch: 8/12
- Secondary Pitch: 0/12

833–493–0942



