Plan No.570001
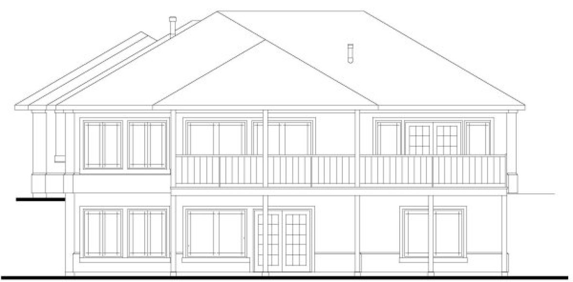
Hillside Bungalow
A Bungalow style home with stucco accents, featuring 9’ high ceilings on the Main and Lower floors. Some rooms are nicely detailed with coffered and trayed ceilings. Designed specifically for a hillside view lot with walk-out basement. From the Double Garage one enters the house via the Mud Room. A partially covered deck off the Main floor extends the living and entertaining space outdoors. A large Walk-in Pantry and Laundry room are covenient to the kitchen on the Main floor.
Specifications
Total 2850 sq ft
- Main: 1598
- Second: 0
- Third: 0
- Loft/Bonus: 0
- Basement: 1252
- Garage: 611
Rooms
- Beds: 3
- Baths: 2
- 1/2 Bath: 1
- 3/4 Bath: 0
Ceiling Height
- Main: 9'0
- Second:
- Third:
- Loft/Bonus:
- Basement: 9'0
- Garage:
Details
- Exterior Walls: 2x6
- Garage Type: doubleGarage
- Width: 51'6
- Depth: 64'10
Roof
- Max Ridge Height:
- Comments: ()
- Primary Pitch: 7/12
- Secondary Pitch: 0/12
Add to Cart
Pricing
– westhomeplanners.com
– westhomeplanners.com
– westhomeplanners.com
– westhomeplanners.com
[Back to Search Results]

833–493–0942


