Plan No.439941
Hipped and Angled
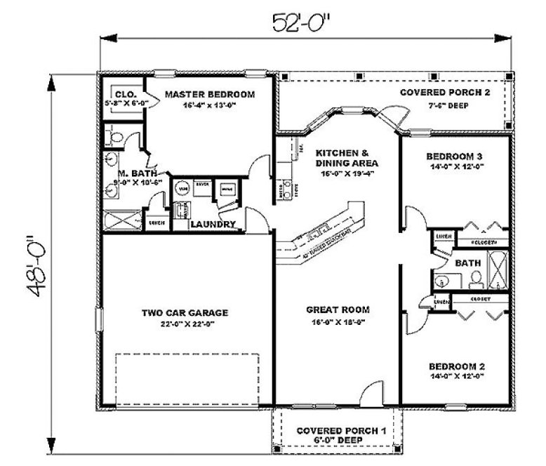
The split bedroom layout gives privacy with no wasted space. The "center" of the house is open from the Great Room to the Dining Area's bayed window. Two Covered Porches give options for outdoor entertaining. The Kitchen has an angled snack bar with cabinets above for more storage. The Master Bedroom is huge, has a nice walk-in closet and a well-appointed Master Bath. The Master Bath has double sinks, linen closet, a tub/shower combo and a separate toilet compartment for privacy. Bedrooms 2 and 3 are large and share a bath with lots of storage. Angles make this home special, large spaces will make this home unforgettable. Total Living Area may increase with Basement Foundation option.
Specifications
Total 1500 sq ft
- Main: 1500
- Second: 0
- Third: 0
- Loft/Bonus: 0
- Basement: 0
- Garage: 0
Rooms
- Beds: 3
- Baths: 2
- 1/2 Bath: 0
- 3/4 Bath: 0
Ceiling Height
- Main: 9'0
- Second:
- Third:
- Loft/Bonus:
- Basement:
- Garage:
Details
- Exterior Walls: 2x4
- Garage Type:
- Width: 52'0
- Depth: 48'0
Roof
- Max Ridge Height: 24'0
- Comments: (From Main Fl to Peak)
- Primary Pitch: 7/12
- Secondary Pitch: 0/12
Add to Cart
Pricing
– westhomeplanners.com
– westhomeplanners.com
Front Photo – westhomeplanners.com
Covered Rear Porch – westhomeplanners.com
Basement Option – westhomeplanners.com
– westhomeplanners.com
[Back to Search Results]

833–493–0942




