Plan No.564001
Spacious Kitchen
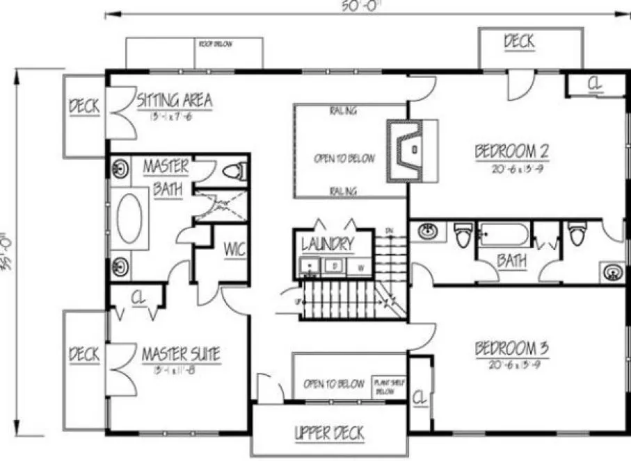
The spacious great room is open to the second floor, making it well-lit and airy. You’ll never run out of counter space in this U-shaped kitchen, with its generous workspace and center island. Upstairs, the master suite is complete with a private deck, two separate vanities, and a large tub. Two additional bedrooms are also located upstairs, with a shared Jack-and-Jill bathroom. One of the bedrooms features a fireplace and private deck.
Specifications
Total 2669 sq ft
- Main: 1017
- Second: 1652
- Third: 0
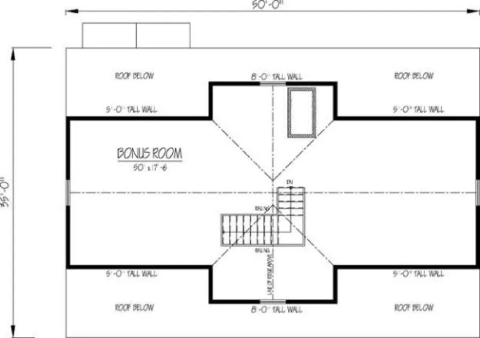
- Loft/Bonus: 1038
- Basement: 0
- Garage: 730
Rooms
- Beds: 3
- Baths: 2
- 1/2 Bath: 1
- 3/4 Bath: 0
Ceiling Height
- Main: 10'0
- Second: 8'0
- Third:
- Loft/Bonus:
- Basement:
- Garage:
Details
- Exterior Walls: 2x6
- Garage Type: tripleGarage
- Width: 50'0
- Depth: 38'0
Roof
- Max Ridge Height: 31'1
- Comments: ()
- Primary Pitch: 8/12
- Secondary Pitch: 0/12
Add to Cart
Pricing
– westhomeplanners.com
– westhomeplanners.com
– westhomeplanners.com
– westhomeplanners.com
– westhomeplanners.com
– westhomeplanners.com
– westhomeplanners.com
[Back to Search Results]

833–493–0942





