Plan No.562001
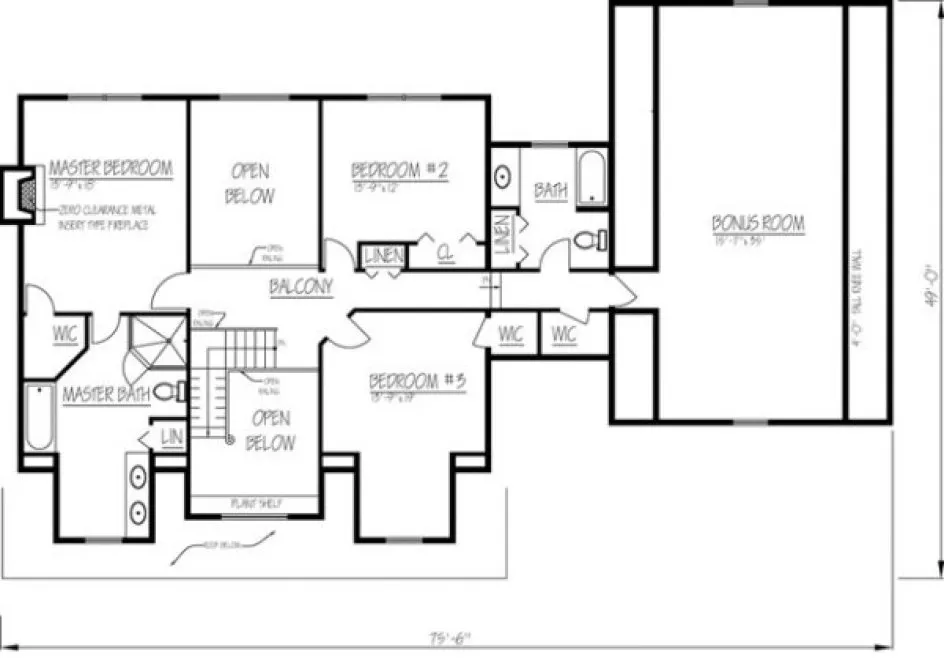
Large Bonus Room
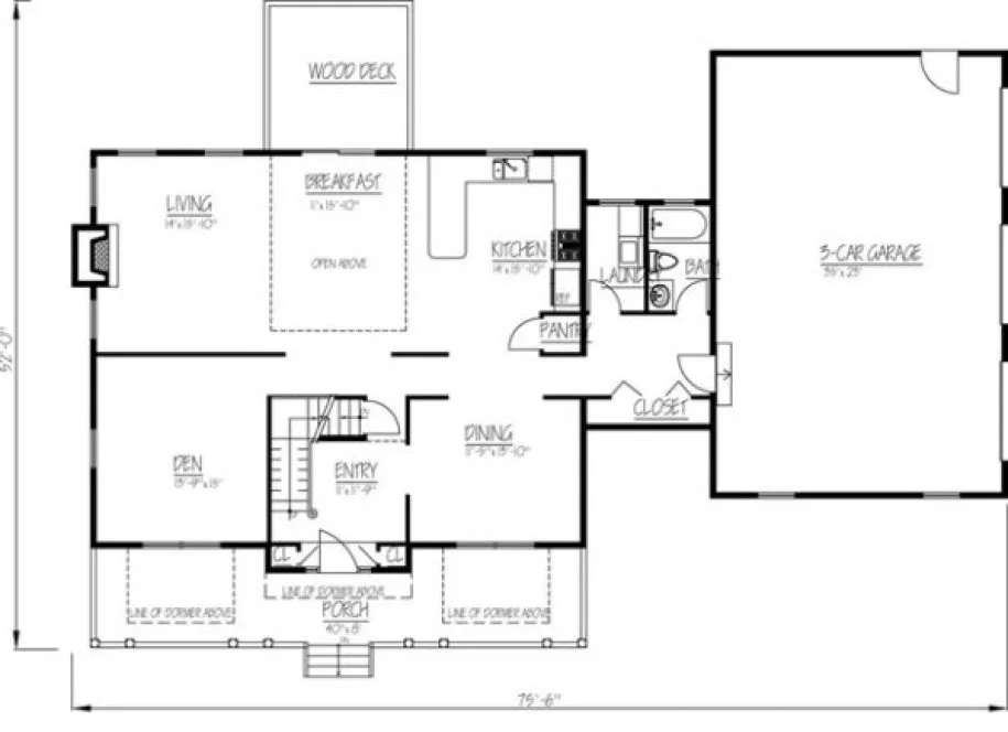
This home’s front porch and rear deck are wonderful for relaxing with family or friends. You’ll love stepping inside of this airy two-story entry to the home. The kitchen is conveniently located next to the laundry area and a breakfast nook, which is open to the upper level. Upstairs, the Master Suite is filled with amenities such as a fireplace, walk-in closet, and dual-sink vanity. A Bonus Room is located above the garage, this bonus room can be used as a home office, playroom, or extra bedroom.
Specifications
Total 2655 sq ft
- Main: 1512
- Second: 1143
- Third: 0
- Loft/Bonus: 408
- Basement: 1512
- Garage: 875
Rooms
- Beds: 3
- Baths: 3
- 1/2 Bath: 0
- 3/4 Bath: 0
Ceiling Height
- Main: 9'0
- Second: 8'0
- Third:
- Loft/Bonus: 8'0
- Basement: 8'0
- Garage:
Details
- Exterior Walls: 2x6
- Garage Type: tripleGarage
- Width: 75'0
- Depth: 52'0
Roof
- Max Ridge Height: 27'1
- Comments: ()
- Primary Pitch: 9/12
- Secondary Pitch: 18/12
Add to Cart
Pricing
– westhomeplanners.com
– westhomeplanners.com
– westhomeplanners.com
– westhomeplanners.com
– westhomeplanners.com
[Back to Search Results]

833–493–0942



