Plan No.510522
Designed For A View
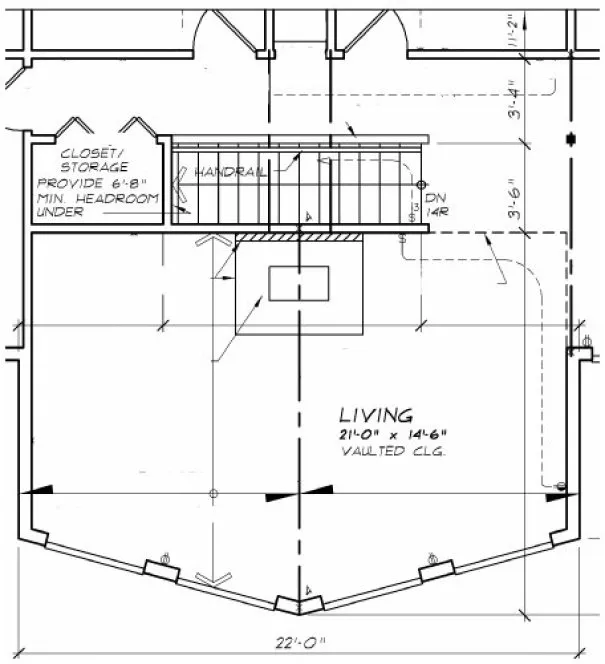
This house is designed for a 60 lb. ground snow load. Both a crawl space and an unfinished basement are available foundation options. The livingroom is stretched foward to allow for the staircase in the basement version, the area of the main floor is increased to 1293 sq. ft.
Specifications
Total 1230 sq ft
- Main: 1230
- Second: 0
- Third: 0
- Loft/Bonus: 0
- Basement: 1230
- Garage: 0
Rooms
- Beds: 3
- Baths: 2
- 1/2 Bath: 0
- 3/4 Bath: 0
Ceiling Height
- Main: 8'0
- Second:
- Third:
- Loft/Bonus:
- Basement: 8'0
- Garage:
Details
- Exterior Walls: 2x6
- Garage Type:
- Width: 56'0
- Depth: 30'0
Roof
- Max Ridge Height: 16'0
- Comments: ()
- Primary Pitch: 6/12
- Secondary Pitch: 0/12
Add to Cart
Pricing
– westhomeplanners.com
– westhomeplanners.com
– westhomeplanners.com
– westhomeplanners.com
Basement Stair Location – westhomeplanners.com
[Back to Search Results]

833–493–0942



