Plan No.310411
Specifications
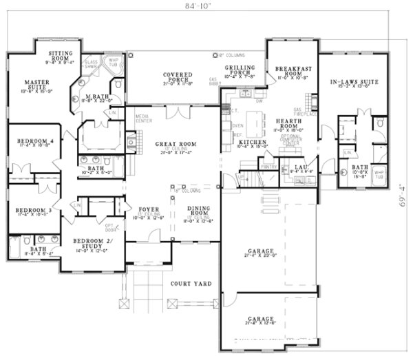
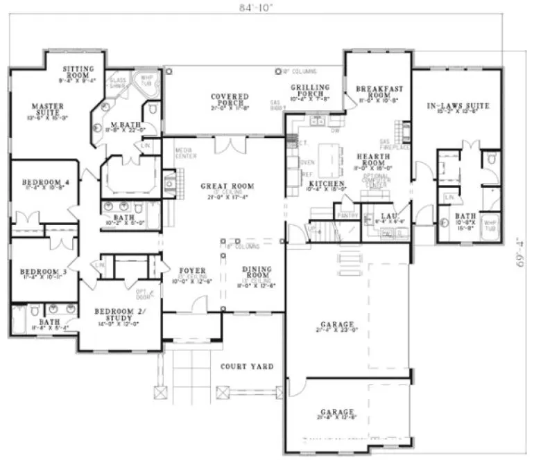
Total 3003 sq ft
- Main: 3003
- Second: 0
- Third: 0
- Loft/Bonus: 390
- Basement: 0
- Garage: 0
Rooms
- Beds: 5
- Baths: 4
- 1/2 Bath: 0
- 3/4 Bath: 0
Ceiling Height
- Main: 9'0
- Second:
- Third:
- Loft/Bonus: 8'0
- Basement:
- Garage:
Details
- Exterior Walls: 2x4
- Garage Type: tripleGarage
- Width: 84'10
- Depth: 69'4
Roof
- Max Ridge Height: 29'4
- Comments: ()
- Primary Pitch: 10/12
- Secondary Pitch: 0/12
Add to Cart
Pricing
Full Rendering – westhomeplanners.com
MAIN Plan – westhomeplanners.com
ATTIC Plan – westhomeplanners.com
Basement Stair Location – westhomeplanners.com
Elevations – westhomeplanners.com
[Back to Search Results]

833–493–0942



