Plan No.213681
Specifications
Total 1863 sq ft
- Main: 1863
- Second: 0
- Third: 0
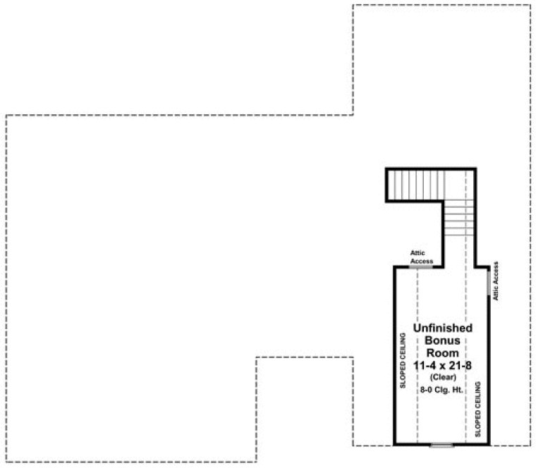
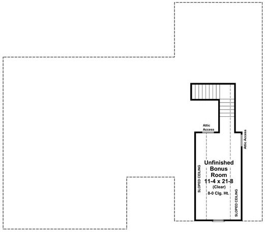
- Loft/Bonus: 246
- Basement: 0
- Garage: 484
Rooms
- Beds: 3
- Baths: 2
- 1/2 Bath: 0
- 3/4 Bath: 0
Ceiling Height
- Main: 9'0"
- Second:
- Third:
- Loft/Bonus:
- Basement:
- Garage:
Details
- Exterior Walls: 2x4
- Garage Type: doubleGarage
- Width: 65'0"
- Depth: 57'0"
Roof
- Max Ridge Height: 24'3"
- Comments: ()
- Primary Pitch: 8/12
- Secondary Pitch: 0/12
Add to Cart
Pricing
– westhomeplanners.com
– westhomeplanners.com
– westhomeplanners.com
Front Photo – westhomeplanners.com
Flex Space – westhomeplanners.com
Flex Space / Foyer – westhomeplanners.com
Foyer – westhomeplanners.com
Great Room – westhomeplanners.com
Kitchen – westhomeplanners.com
Kitchen / Breakfast Room – westhomeplanners.com
Master Bathroom – westhomeplanners.com
– westhomeplanners.com
[Back to Search Results]

833–493–0942










