Plan No.340951
Luxuries Abound
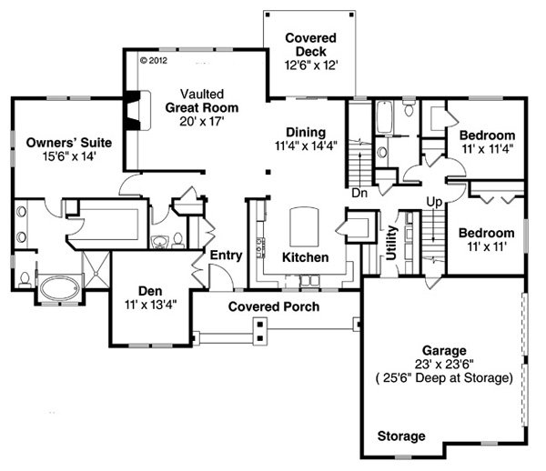
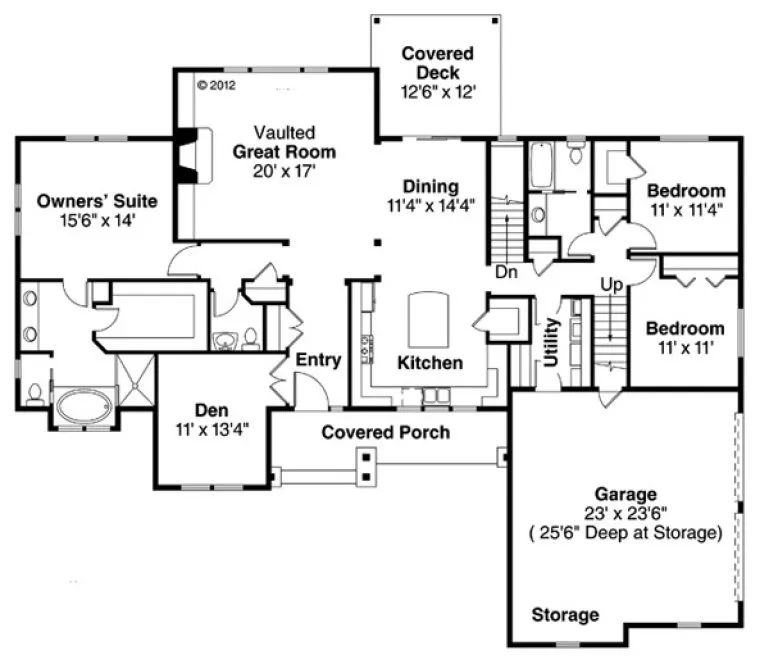
While the exterior is traditional, the interior of this ranch-style home is totally contemporary. Bright and spacious gathering spaces fill its core. Its generously sized kitchen is open to a dining room with sliding door access to a covered deck. Luxuries abound in the owners’ suite, while the den, just inside the front door, is in an ideal location for a home office.
Specifications
Total 2283 sq ft
- Main: 2283
- Second: 0
- Third: 0
- Loft/Bonus: 286
- Basement: 2283
- Garage: 599
Rooms
- Beds: 0
- Baths: 0
- 1/2 Bath: 0
- 3/4 Bath: 0
Ceiling Height
- Main:
- Second:
- Third:
- Loft/Bonus:
- Basement:
- Garage:
Details
- Exterior Walls: 2x6
- Garage Type:
- Width: 74'0
- Depth: 64'0
Roof
- Max Ridge Height: 25'11
- Comments: ()
- Primary Pitch: 10/12
- Secondary Pitch: 0/12
Add to Cart
Pricing
– westhomeplanners.com
– westhomeplanners.com
– westhomeplanners.com
– westhomeplanners.com
– westhomeplanners.com
– westhomeplanners.com
[Back to Search Results]

833–493–0942




