Plan No.201778
Specifications
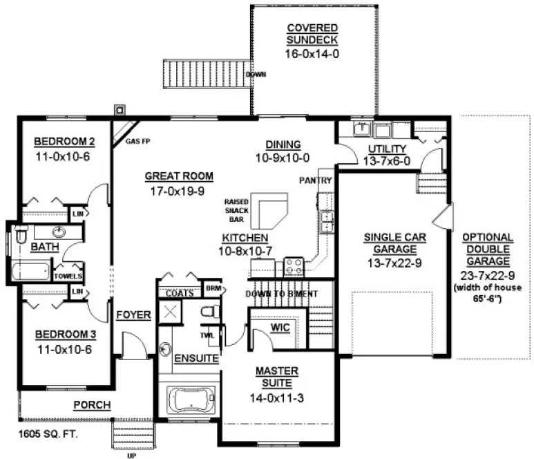
Total 1605 sq ft
- Main: 1605
- Second: 0
- Third: 0
- Loft/Bonus: 0
- Basement: 1580
- Garage: 327
Rooms
- Beds: 3
- Baths: 2
- 1/2 Bath: 0
- 3/4 Bath: 0
Ceiling Height
- Main: 8'0
- Second:
- Third:
- Loft/Bonus:
- Basement: 8'0
- Garage: 10'3
Details
- Exterior Walls: 2x6
- Garage Type: singleGarage
- Width: 55'6
- Depth: 55'0
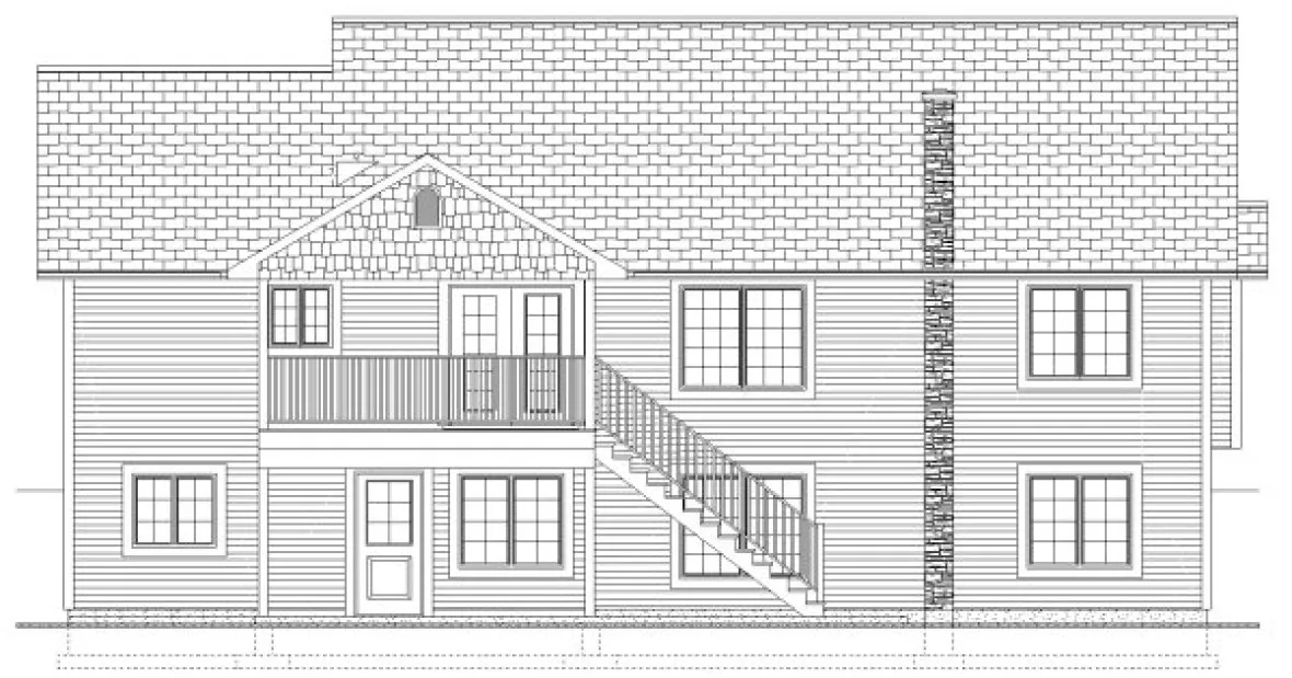
Roof
- Max Ridge Height: 22'6
- Comments: (Finished Grade to Peak)
- Primary Pitch: 7/12
- Secondary Pitch: 0/12
Add to Cart
Pricing
– westhomeplanners.com
– westhomeplanners.com
Artist's Rendering – westhomeplanners.com
– westhomeplanners.com
[Back to Search Results]

833–493–0942


