Plan No.518000
Cute Chalet
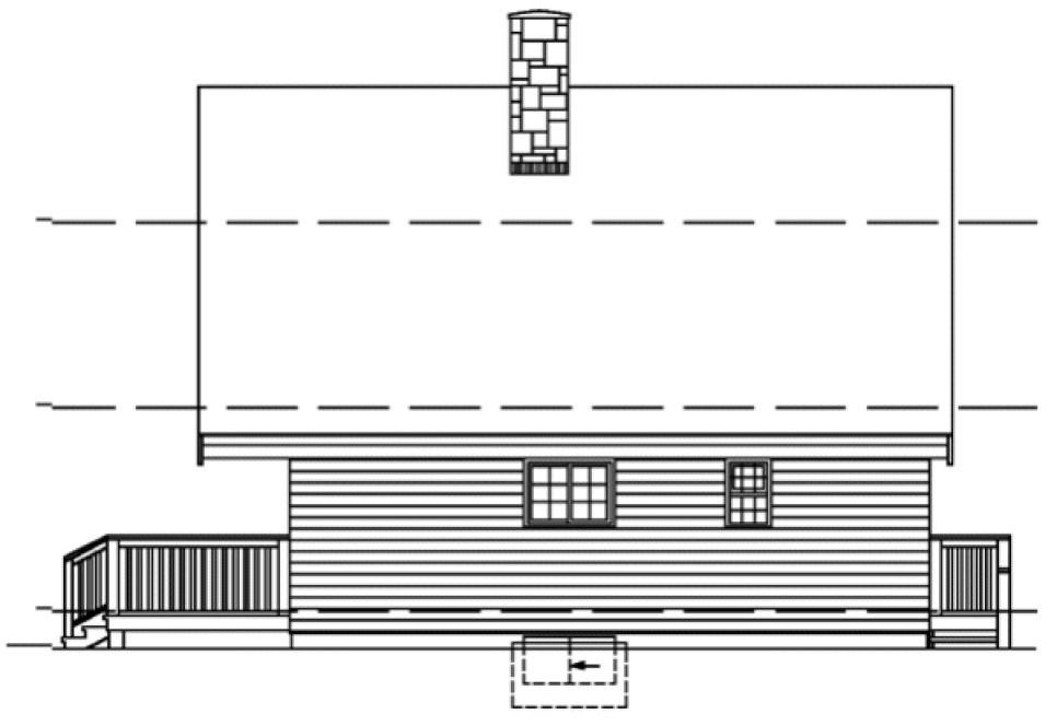
This chalet plan is enhanced by a steep gable roof, scalloped fascia boards and fieldstone chimney detail. The front-facing deck and covered balcony add to outdoor living spaces. The fireplace is the main focus in the living room, separating the living room from the dining room. One bedroom is found on the first floor; two additional bedrooms and a half bath are upstairs. Three large storage areas are also found on the second floor.
Specifications
Total 1073 sq ft
- Main: 672
- Second: 401
- Third: 0
- Loft/Bonus: 0
- Basement: 0
- Garage: 0
Rooms
- Beds: 3
- Baths: 1
- 1/2 Bath: 1
- 3/4 Bath: 0
Ceiling Height
- Main: 8'0
- Second: 8'0
- Third:
- Loft/Bonus:
- Basement:
- Garage:
Details
- Exterior Walls: 2x6
- Garage Type:
- Width: 24'0
- Depth: 38'0
Roof
- Max Ridge Height: 25'0
- Comments: ()
- Primary Pitch: 12/12
- Secondary Pitch: 0/12
Add to Cart
Pricing
– westhomeplanners.com
– westhomeplanners.com
– westhomeplanners.com
Front Rendering – westhomeplanners.com
– westhomeplanners.com
– westhomeplanners.com
– westhomeplanners.com
Front Elevation – westhomeplanners.com
[Back to Search Results]

833–493–0942






