Plan No.395550
Specifications
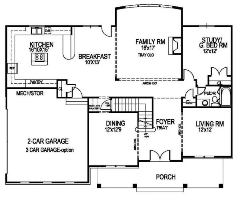
Total 3082 sq ft
- Main: 1653
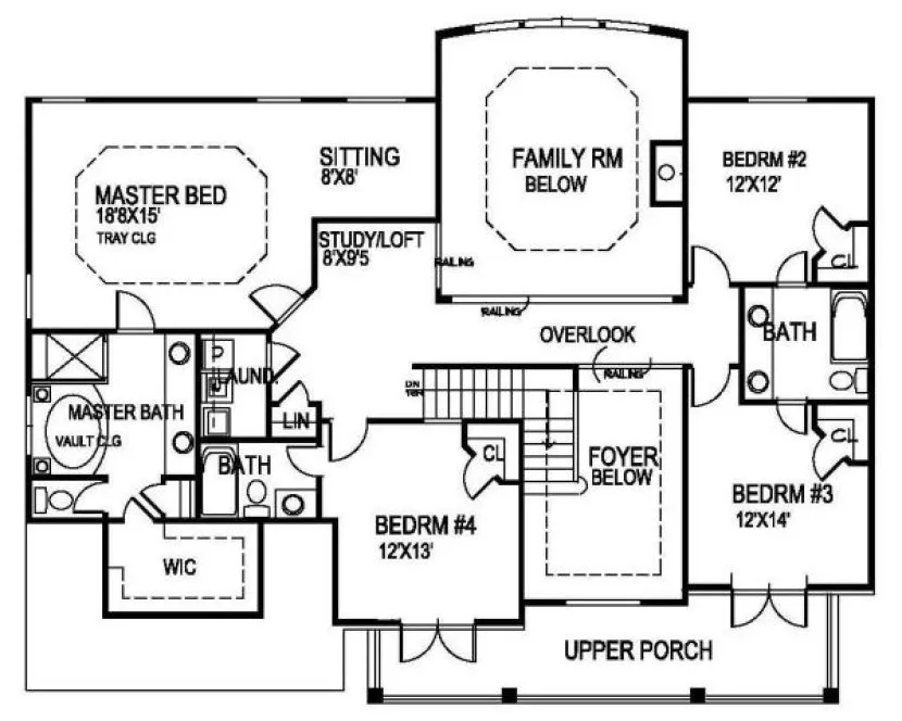
- Second: 1429
- Third: 0
- Loft/Bonus: 0
- Basement: 0
- Garage: 463
Rooms
- Beds: 5
- Baths: 4
- 1/2 Bath: 0
- 3/4 Bath: 0
Ceiling Height
- Main: 9'0
- Second: 8'0
- Third:
- Loft/Bonus:
- Basement:
- Garage: 10'4
Details
- Exterior Walls: 2x4
- Garage Type: doubleGarage
- Width: 58'0
- Depth: 47'0
Roof
- Max Ridge Height: 38'0
- Comments: ()
- Primary Pitch: 12/12
- Secondary Pitch: 0/12
Add to Cart
Pricing
– westhomeplanners.com
– westhomeplanners.com
– westhomeplanners.com
[Back to Search Results]

833–493–0942

