Plan No.397450
Specifications
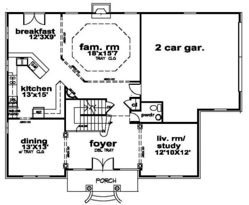
Total 2834 sq ft
- Main: 1360
- Second: 1474
- Third: 0
- Loft/Bonus: 0
- Basement: 0
- Garage: 540
Rooms
- Beds: 4
- Baths: 3
- 1/2 Bath: 1
- 3/4 Bath: 0
Ceiling Height
- Main: 9'0
- Second: 8'0
- Third:
- Loft/Bonus:
- Basement:
- Garage: 10'4
Details
- Exterior Walls: 2x4
- Garage Type: doubleGarage
- Width: 55'0
- Depth: 40'0
Roof
- Max Ridge Height: 39'0
- Comments: ()
- Primary Pitch: 12/12
- Secondary Pitch: 0/12
Add to Cart
Pricing
– westhomeplanners.com
– westhomeplanners.com
– westhomeplanners.com
[Back to Search Results]

833–493–0942

