Plan No.242030
Specifications
Total 1985 sq ft
- Main: 1985
- Second: 0
- Third: 0
- Loft/Bonus: 394
- Basement: 0
- Garage: 658
Rooms
- Beds: 3
- Baths: 2
- 1/2 Bath: 0
- 3/4 Bath: 0
Ceiling Height
- Main: 9'0
- Second:
- Third:
- Loft/Bonus: 8'0
- Basement:
- Garage: 10'4
Details
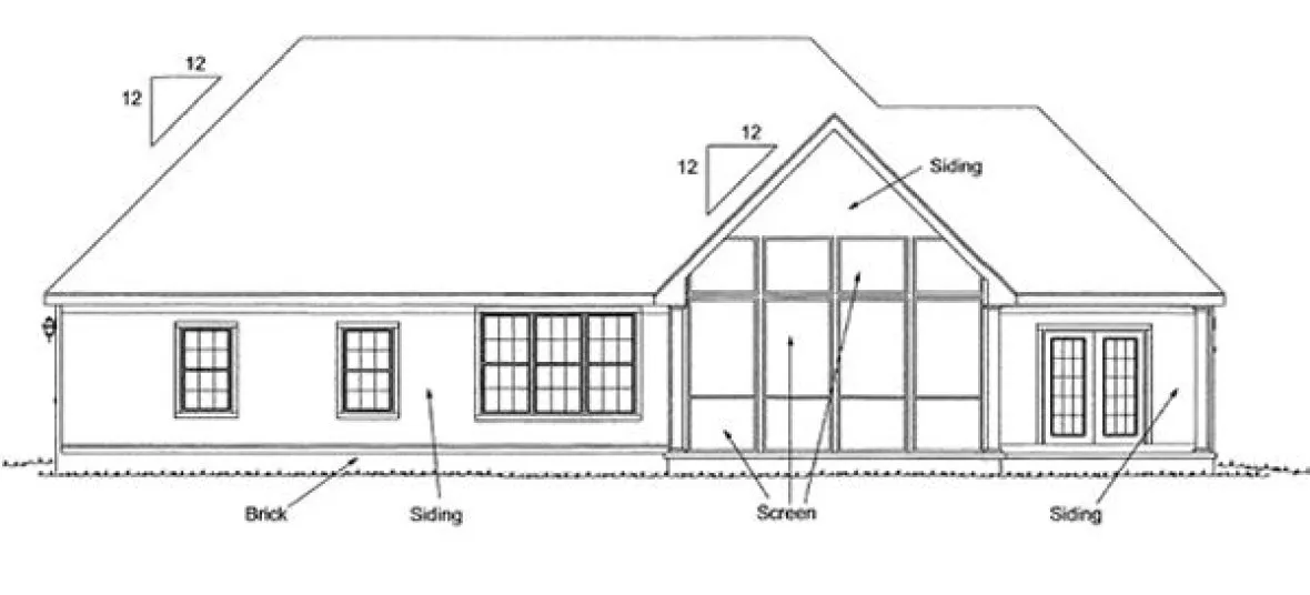
- Exterior Walls: 2x4
- Garage Type: tripleGarage
- Width: 66'0
- Depth: 61'0
Roof
- Max Ridge Height: 24'0
- Comments: ()
- Primary Pitch: 8/12
- Secondary Pitch: 12/12
Add to Cart
Pricing
– westhomeplanners.com
– westhomeplanners.com
– westhomeplanners.com
– westhomeplanners.com
[Back to Search Results]

833–493–0942


