Plan No.150176
All-Around Pleaser
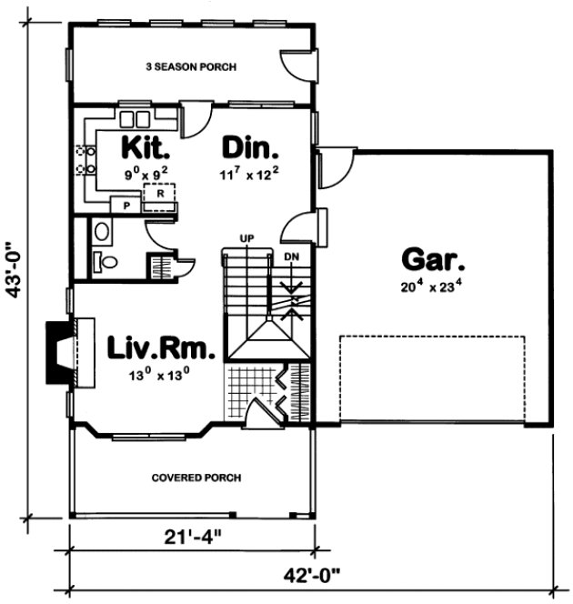
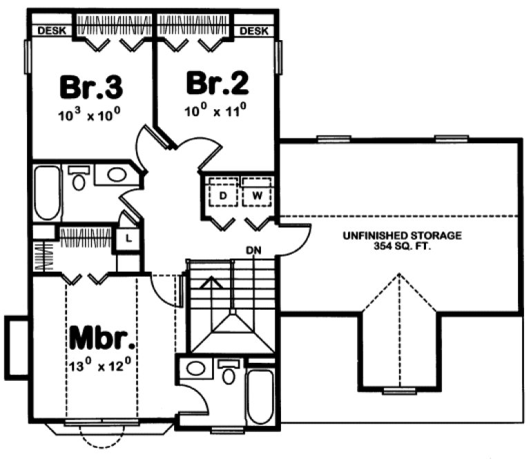
With its charming front veranda and large rear three-season porch, this three bedroom home is an all-around pleaser. A welcoming Foyer ushers visitors into the Great Room, where a handsome fireplace and bay window lend a dramatic touch to the home's central living area.
Specifications
Total 1297 sq ft
- Main: 603
- Second: 694
- Third: 0
- Loft/Bonus: 354
- Basement: 603
- Garage: 478
Rooms
- Beds: 3
- Baths: 2
- 1/2 Bath: 1
- 3/4 Bath: 0
Ceiling Height
- Main: 9'0
- Second: 8'0
- Third:
- Loft/Bonus:
- Basement: 9'0
- Garage: 10'4
Details
- Exterior Walls: 2x4
- Garage Type: doubleGarage
- Width: 42'0
- Depth: 43'0
Roof
- Max Ridge Height: 27'4
- Comments: (Main Floor to Peak)
- Primary Pitch: 0/12
- Secondary Pitch: 0/12
Add to Cart
Pricing
– westhomeplanners.com
– westhomeplanners.com
– westhomeplanners.com
– westhomeplanners.com
[Back to Search Results]

833–493–0942


