Plan No.534661
Textured Facade
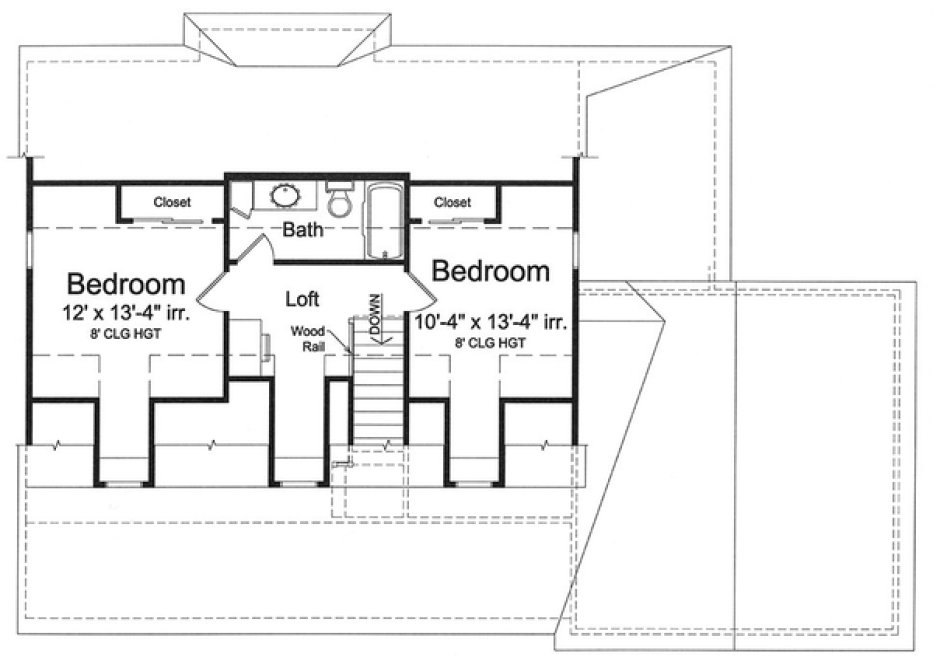
This farmhouse style home in a Cape Cod architecture offers a covered porch and dormers to decorate the façade. The Living Room showcases a fireplace and views to the rear yard. An island defines the u-shaped Kitchen, which conbined with the Dining Area and Great Room becomes a large family gathering place. The first floor Master Bedroom, Laundry Room, two additional bedrooms on the second floor and 8' ceiling heights makes this home functional and affordable.
Specifications
Total 1664 sq ft
- Main: 1143
- Second: 521
- Third: 0
- Loft/Bonus: 0
- Basement: 1143
- Garage: 419
Rooms
- Beds: 3
- Baths: 2
- 1/2 Bath: 1
- 3/4 Bath: 0
Ceiling Height
- Main: 8'0
- Second: 8'0
- Third:
- Loft/Bonus:
- Basement:
- Garage:
Details
- Exterior Walls: 2x4
- Garage Type: doubleGarage
- Width: 55'0
- Depth: 38'0
Roof
- Max Ridge Height: 23'0
- Comments: (Main Floor to Peak)
- Primary Pitch: 10/12
- Secondary Pitch: 0/12
Add to Cart
Pricing
– westhomeplanners.com
– westhomeplanners.com
– westhomeplanners.com
– westhomeplanners.com
– westhomeplanners.com
– westhomeplanners.com
– westhomeplanners.com
[Back to Search Results]

833–493–0942





