Plan No.155076
Compact Traditional
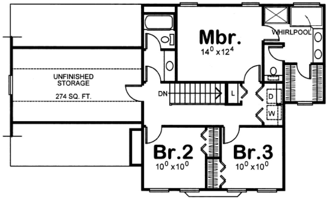
This compact traditional is packed with features. The Great Room has a cozy fireplace at one end, and at the other end through French doors is a three-season porch. A spacious Kitchen and Dining area with half Bath complete this floor. Upstairs, the Master Suite is well-appointed with a decor ceiling, large private Bath and Walk-in Closet. There is space for the Laundry off the hall.
Specifications
Total 1641 sq ft
- Main: 838
- Second: 803
- Third: 0
- Loft/Bonus: 274
- Basement: 838
- Garage: 0
Rooms
- Beds: 3
- Baths: 2
- 1/2 Bath: 1
- 3/4 Bath: 0
Ceiling Height
- Main: 9'0
- Second: 8'0
- Third:
- Loft/Bonus:
- Basement: 9'0
- Garage:
Details
- Exterior Walls: 2x4
- Garage Type:
- Width: 52'0
- Depth: 37'4
Roof
- Max Ridge Height: 30'5
- Comments: (Main Floor to Peak)
- Primary Pitch: 0/12
- Secondary Pitch: 0/12
Add to Cart
Pricing
– westhomeplanners.com
– westhomeplanners.com
– westhomeplanners.com
– westhomeplanners.com
[Back to Search Results]

833–493–0942


