Plan No.534640
Inspired Architectural Details
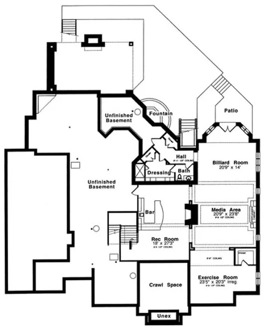
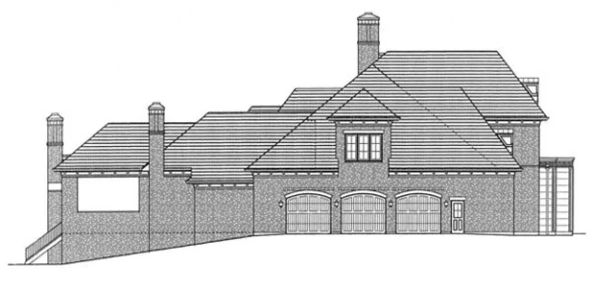
This European inspired home showcases exterior architectural elements such as elliptical arches, a parapet, limestone trim and a solid brick façade. Ceiling treatments on the interior range from a spectacular octagon skylight in the foyer to a stunning celestial dome above the breakfast area to beamed ceilings in the Great Room and Hearth Room. The Master Bedroom pampers the homeowner with luxurious surroundings including a whirlpool tub, two person shower, dual vanities and a bayed sitting area overlooking the rear yard. The dramatic terrace and wonderful rear porch combine to create an amazing exterior outdoor living space. The second floor boasts of three additional bedrooms each with a private bath and walk-in closet. A study and sitting room provide additional personal space. Entertaining in the lower level basement becomes more fun with a bar, gas fireplace, media area and billiards room. An exercise room makes it fun and easy for the homeowner to stay in shape.
Specifications
Total 9040 sq ft
- Main: 4511
- Second: 2295
- Third: 0
- Loft/Bonus: 0
- Basement: 2234
- Garage: 1061
Rooms
- Beds: 4
- Baths: 4
- 1/2 Bath: 2
- 3/4 Bath: 0
Ceiling Height
- Main: 10'1
- Second: 9'1
- Third:
- Loft/Bonus:
- Basement:
- Garage: 11'5
Details
- Exterior Walls: 2x6
- Garage Type: tripleGarage
- Width: 90'2
- Depth: 104'5
Roof
- Max Ridge Height: 36'11
- Comments: ()
- Primary Pitch: 0/12
- Secondary Pitch: 0/12

833–493–0942








