Plan No.536250
Artistic Exterior
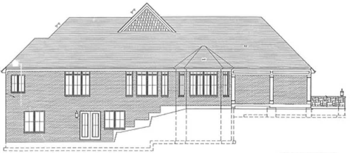
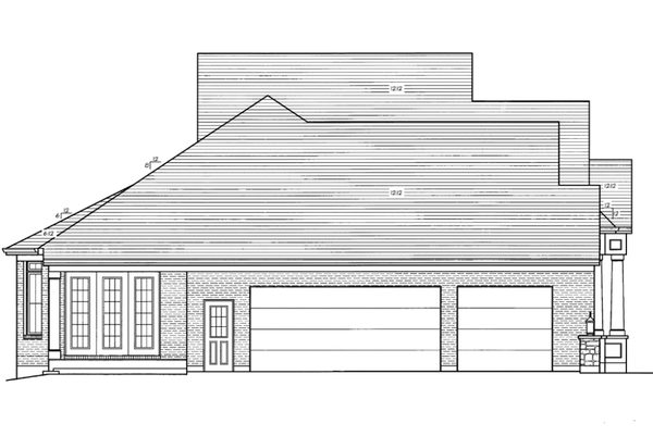
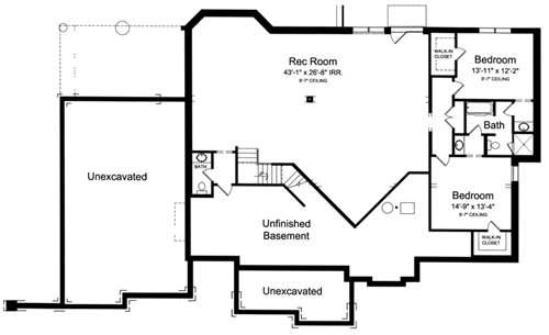
This spacious home with great room, informal and formal dining, a library, two master bedrooms and a covered porch offers a spectacular home for the empty nester or one who just enjoys indoor and outdoor comfort. Various ceiling heights throughout the home range from 12' in the great room, kitchen and master suite and 9' in secondary spaces. The artistic exterior includes a precise combination of stone, brick and siding to create a beautiful home.
Specifications
Total 2796 sq ft
- Main: 2796
- Second: 0
- Third: 0
- Loft/Bonus: 0
- Basement: 2796
- Garage: 767
Rooms
- Beds: 2
- Baths: 2
- 1/2 Bath: 1
- 3/4 Bath: 0
Ceiling Height
- Main: 9'0
- Second:
- Third:
- Loft/Bonus:
- Basement: 8'0
- Garage:
Details
- Exterior Walls: 2x4
- Garage Type: tripleGarage
- Width: 87'4
- Depth: 57'4
Roof
- Max Ridge Height: 29'11
- Comments: (Main Floor to Peak)
- Primary Pitch: 8/12
- Secondary Pitch: 0/12
Add to Cart
Pricing
– westhomeplanners.com
– westhomeplanners.com
– westhomeplanners.com
Rear Photo – westhomeplanners.com
Front Porch – westhomeplanners.com
Artist's Rendering – westhomeplanners.com
Great Room – westhomeplanners.com
Kitchen – westhomeplanners.com
– westhomeplanners.com
– westhomeplanners.com
– westhomeplanners.com
[Back to Search Results]

833–493–0942









