Plan No.538220
Excellently Coordinated
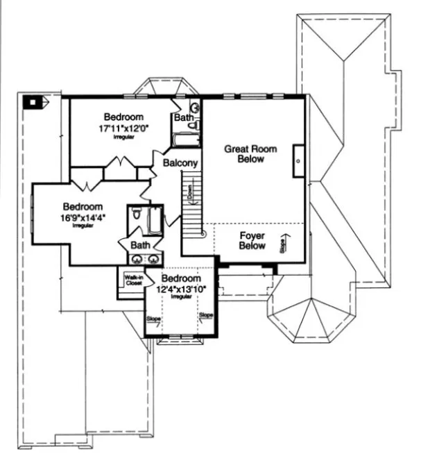
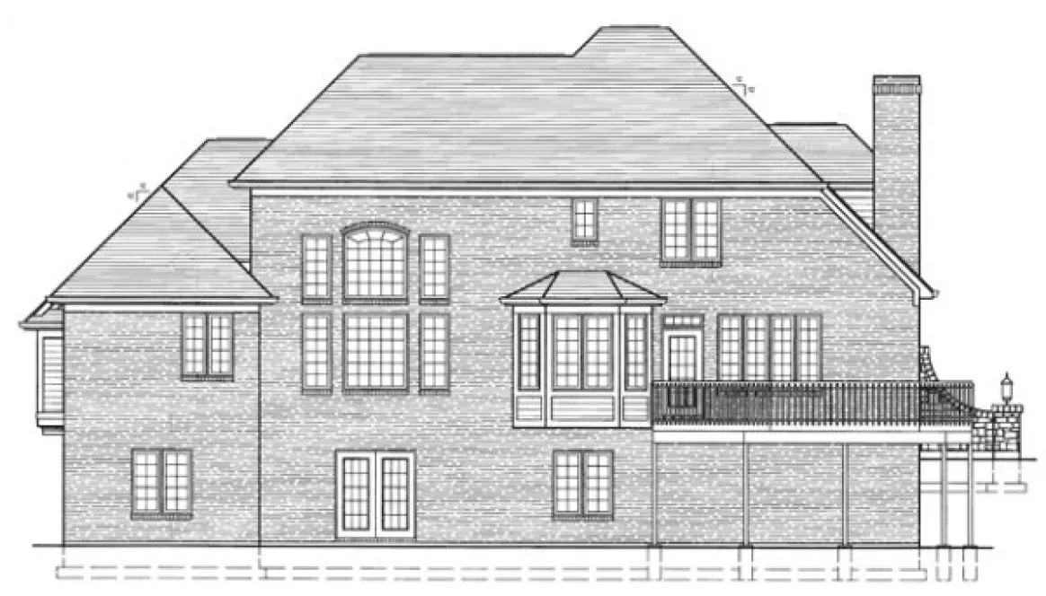
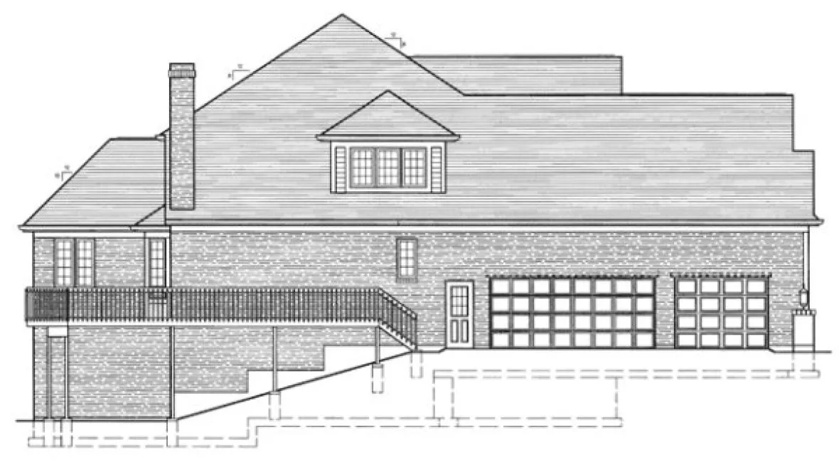
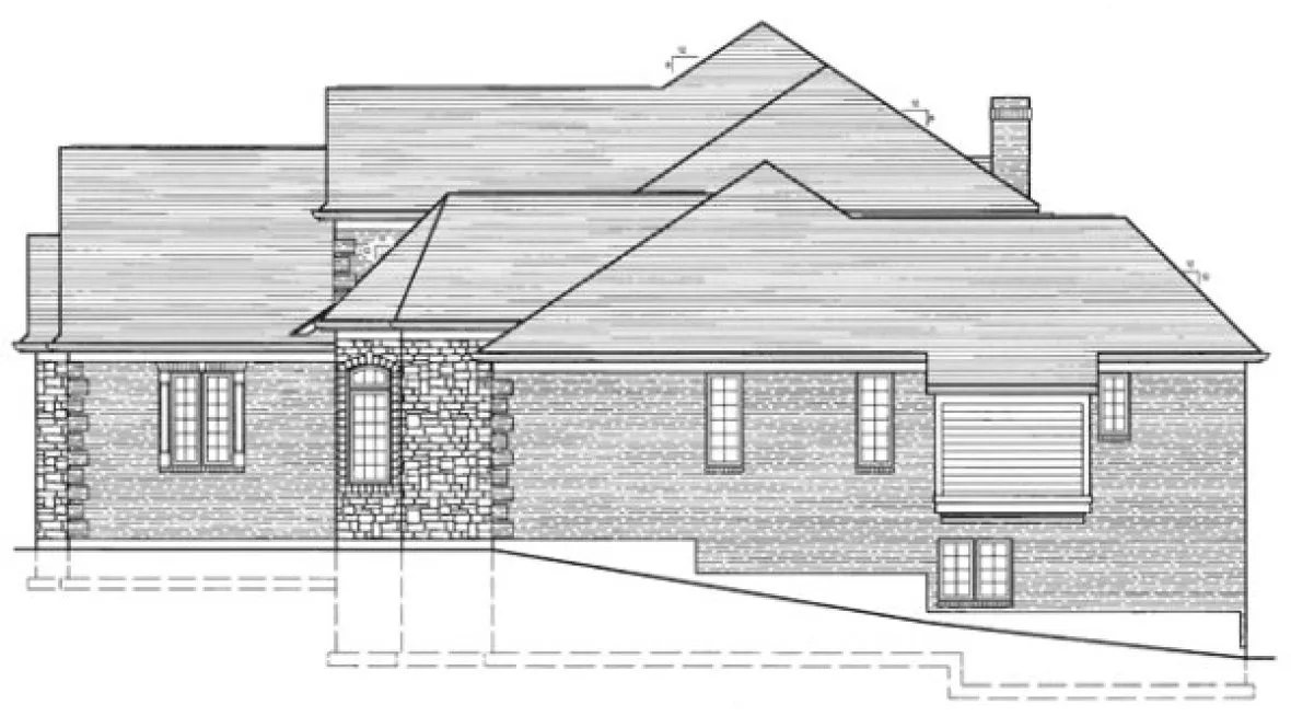
A stone and brick exterior is excellently coordinated to create a warm and charming showplace. The spacious foyer leads directly into the great room which visually opens to the rear yard providing natural light and outdoor charm. A fully equipped kitchen is located to provide the utmost convenience in serving to the formal dining room, with double soffit ceiling treatment or the breakfast area, which is surrounded by windows. The combination of breakfast room, hearth room and kitchen creatively form a comfortable family gathering place. A library with angled walls opens from the foyer and creates a private retreat. A tray ceiling tops the master bedroom suite and a luxurious dressing area pampers the homeowner. Wood rails decorate the stairs leading to a balcony where a dramatic view is provided to the great room and foyer below. A secondary private bedroom suite with personal bath and two bedrooms that share a Jack & Jill bath complete this exciting home.
Specifications
Total 3435 sq ft
- Main: 2479
- Second: 956
- Third: 0
- Loft/Bonus: 0
- Basement: 2479
- Garage: 716
Rooms
- Beds: 4
- Baths: 3
- 1/2 Bath: 1
- 3/4 Bath: 0
Ceiling Height
- Main: 9'1
- Second: 8'1
- Third:
- Loft/Bonus:
- Basement: 8'0
- Garage: 10'5
Details
- Exterior Walls: 2x4
- Garage Type: tripleGarage
- Width: 67'6
- Depth: 75'6
Roof
- Max Ridge Height: 32'6
- Comments: ()
- Primary Pitch: 0/12
- Secondary Pitch: 0/12

833–493–0942







