Plan No.536630
Perfect Choice
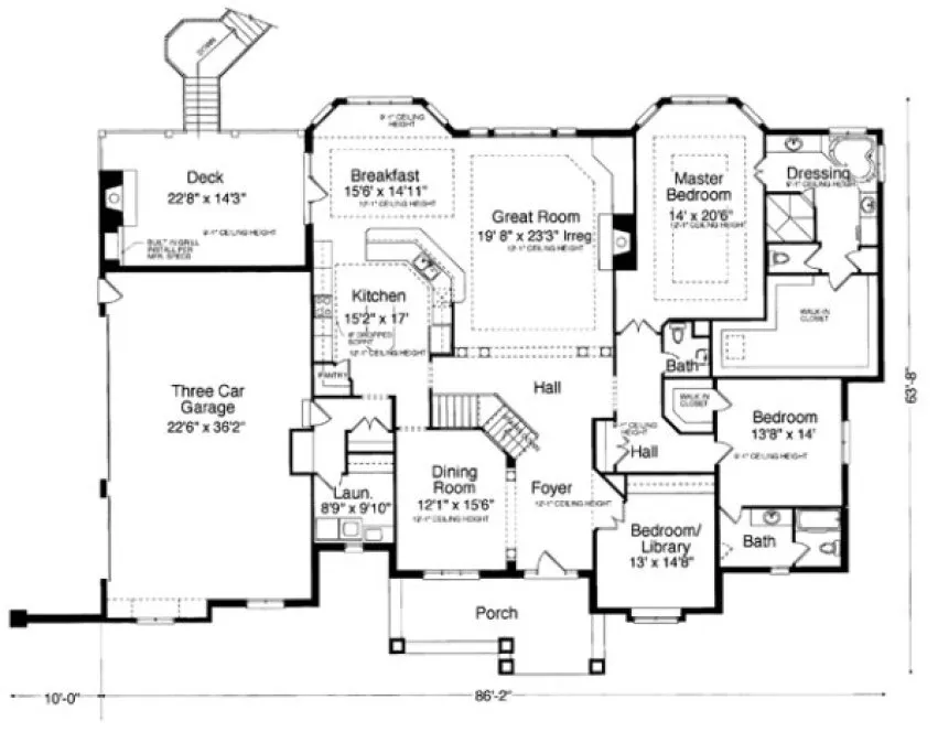
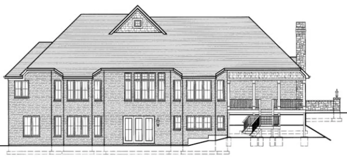
A brick, stone and shake façade with covered porch and multiple gables make this beautiful one level home a perfect choice for the discriminating buyer. A large informal Great Room, Breakfast Area and Kitchen, with island and bar seating, create a comfortable and inviting atmosphere. Columns introduce the Great Room from the Foyer while 12' high ceilings top the Great Room, Breakfast Area, Kitchen, Dining Room and Master Bedroom. Formal Dining is available for special occasion dining and a covered deck with fireplace and built in grill area offers expanded space for fun times. Angled stairs lead to an optional finished lower level where a large party room offers a bar, billiards area, rec. room and media room. Additional bedrooms are available for the occasional overnight guest or family members.
Specifications
Total 3171 sq ft
- Main: 3171
- Second: 0
- Third: 0
- Loft/Bonus: 0
- Basement: 1897
- Garage: 813
Rooms
- Beds: 3
- Baths: 3
- 1/2 Bath: 1
- 3/4 Bath: 0
Ceiling Height
- Main: 9'1
- Second:
- Third:
- Loft/Bonus:
- Basement: 8'0
- Garage: 10'5
Details
- Exterior Walls: 2x4
- Garage Type: tripleGarage
- Width: 86'2
- Depth: 63'8
Roof
- Max Ridge Height: 30'0
- Comments: ()
- Primary Pitch: 0/12
- Secondary Pitch: 0/12

833–493–0942













