Plan No.532430
A Home Set Apart
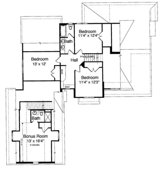
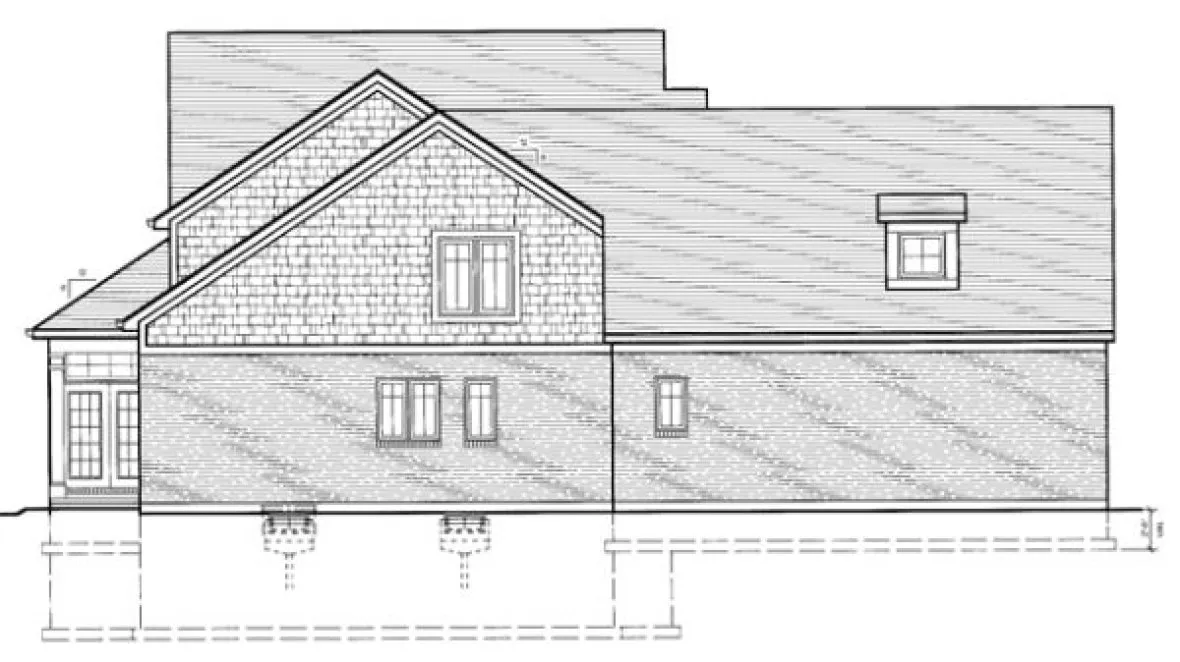
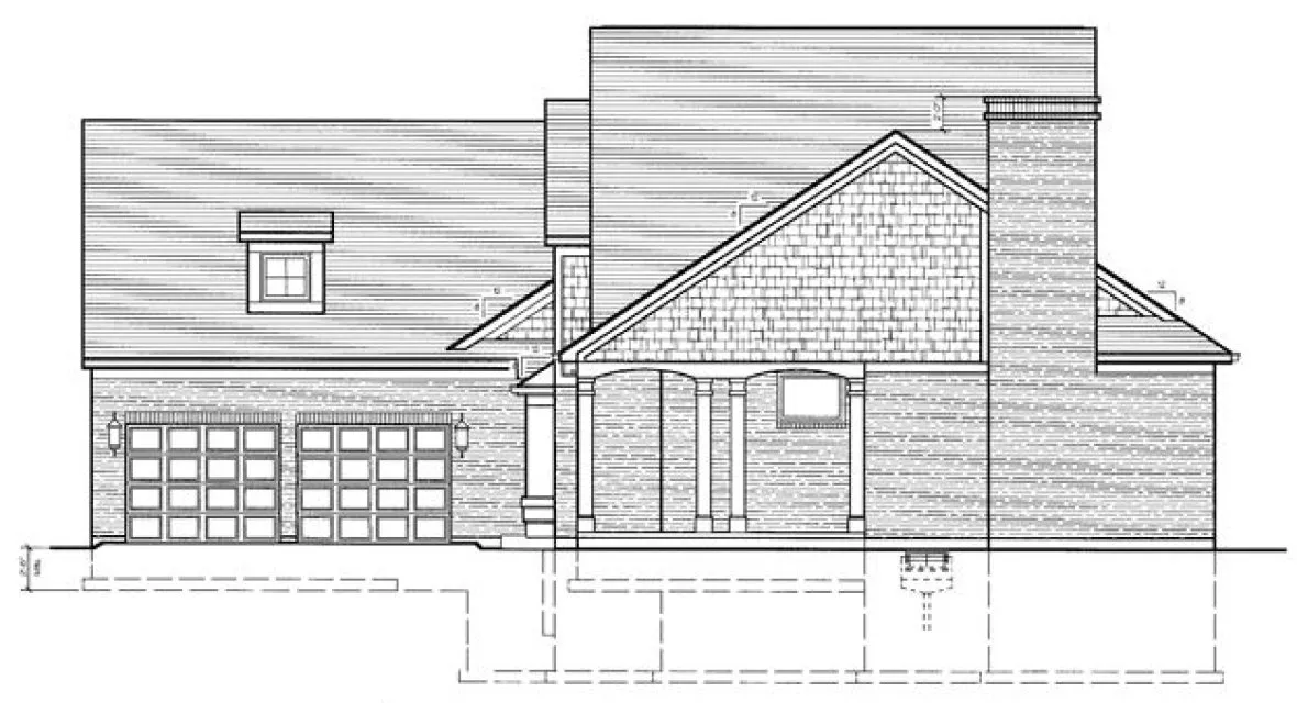
A brick and cedar exterior and wrap around porch decorate the front of this beautiful 2 story home. An abundance of windows and doors, dual access stairs, furniture alcoves, 11' ceiling height and a wood burning fireplace set this home apart from the ordinary. An island in the kitchen provides additional work area and offers seating for quick meals and conversation with the cook. The master bedroom suite, topped with a vaulted ceiling, offers a whirlpool tub, dual vanities and a large walk-in closet. Three additional bedrooms and a study loft complete the main part of this spectacular home. A second set of stairs leads to a bonus room above the garage offering a private area for an office or studio. Please note that, upon completion, the bonus room would add 380 sq. ft. to the total finished area.
Specifications
Total 2537 sq ft
- Main: 1772
- Second: 765
- Third: 0
- Loft/Bonus: 0
- Basement: 1772
- Garage: 455
Rooms
- Beds: 4
- Baths: 2
- 1/2 Bath: 1
- 3/4 Bath: 0
Ceiling Height
- Main: 9'0
- Second: 8'0
- Third:
- Loft/Bonus:
- Basement: 8'0
- Garage: 10'4
Details
- Exterior Walls: 2x4
- Garage Type: doubleGarage
- Width: 61'8
- Depth: 66'4
Roof
- Max Ridge Height: 24'6
- Comments: ()
- Primary Pitch: 0/12
- Secondary Pitch: 0/12

833–493–0942




