Plan No.537330
Beautiful and Convenient
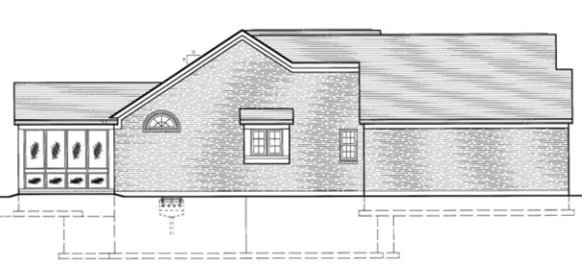
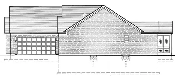
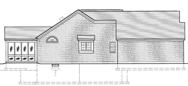
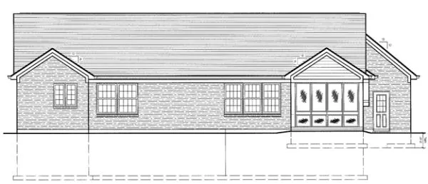
This one level home offers a beautiful facade, exciting interior, and step saving convenience. A great room, with a formal dining area, is decorated by a sloped ceiling and corner fireplace. The large breakfast area opens generously from the great room to a spectacular screened porch. A boxed window at the sink and a peninsula with seating decorate the spacious kitchen. To pamper the homeowner, a luxurious bath completes the master bedroom suite. Large windows and a screened porch offer a wonderful indoor-outdoor relationship.
Specifications
Total 1788 sq ft
- Main: 1788
- Second: 0
- Third: 0
- Loft/Bonus: 0
- Basement: 1788
- Garage: 543
Rooms
- Beds: 3
- Baths: 2
- 1/2 Bath: 0
- 3/4 Bath: 0
Ceiling Height
- Main: 8'0
- Second:
- Third:
- Loft/Bonus:
- Basement: 8'0
- Garage: 9'4
Details
- Exterior Walls: 2x4
- Garage Type: doubleGarage
- Width: 66'0
- Depth: 69'0
Roof
- Max Ridge Height: 21'0
- Comments: ()
- Primary Pitch: 0/12
- Secondary Pitch: 0/12
Add to Cart
Pricing
– westhomeplanners.com
– westhomeplanners.com
– westhomeplanners.com
– westhomeplanners.com
– westhomeplanners.com
[Back to Search Results]

833–493–0942



