Plan No.534530
Charming Family Home
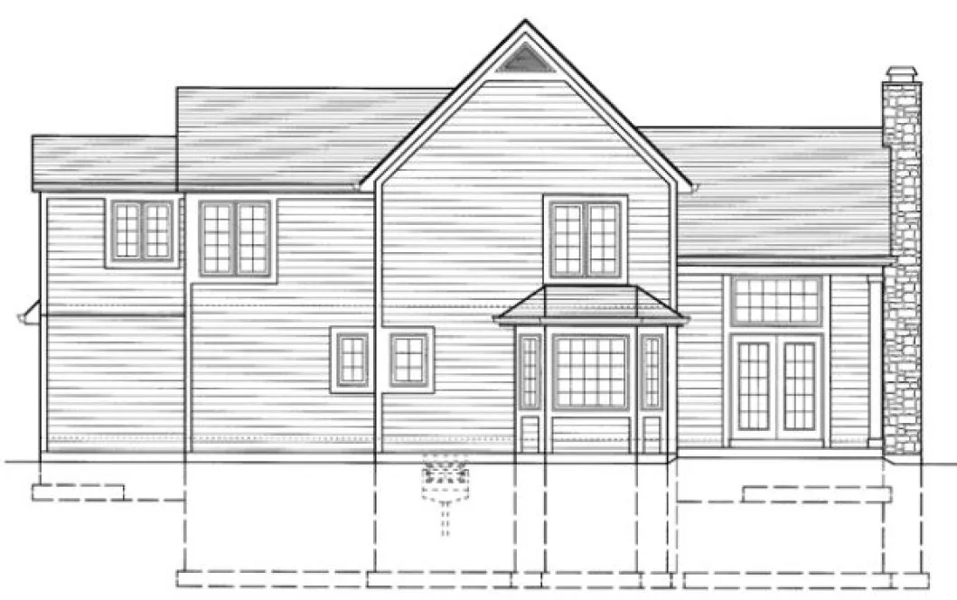
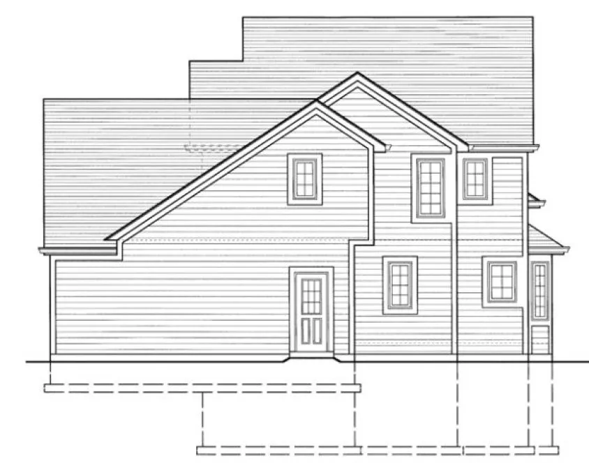
A stone and siding exterior brings dimension and color to the exterior of this charming home. A two-story foyer greets you upon arrival and the great room, with views to the rear and sides yard, offers a 12' ceiling height. The breakfast bay with entry to a covered porch creates a bright and cheerful place to start the day. Additional storage and a convenient writing desk are provided with the extended counter space. A furniture alcove adds space to the formal dining room, and a rear entry hall offers storage closets and a large laundry room. A second floor master bedroom, with a ceiling that slopes to 9', keeps the parents close at hand to the younger family members. This home has a full basement that can be accessed for additional square footage.
Specifications
Total 1727 sq ft
- Main: 941
- Second: 786
- Third: 0
- Loft/Bonus: 0
- Basement: 941
- Garage: 525
Rooms
- Beds: 3
- Baths: 2
- 1/2 Bath: 1
- 3/4 Bath: 0
Ceiling Height
- Main: 9'0
- Second: 8'0
- Third:
- Loft/Bonus:
- Basement: 8'0
- Garage: 10'4
Details
- Exterior Walls: 2x4
- Garage Type: doubleGarage
- Width: 57'8
- Depth: 58'0
Roof
- Max Ridge Height: 32'0
- Comments: ()
- Primary Pitch: 0/12
- Secondary Pitch: 0/12

833–493–0942




