Plan No.531530
Spectacular Curb Appeal
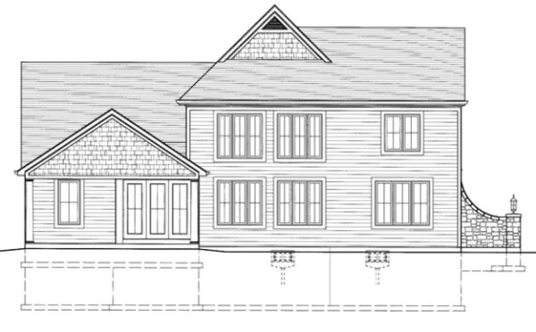
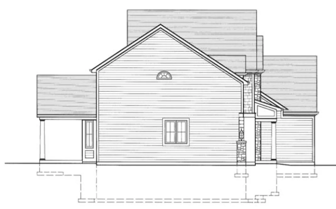
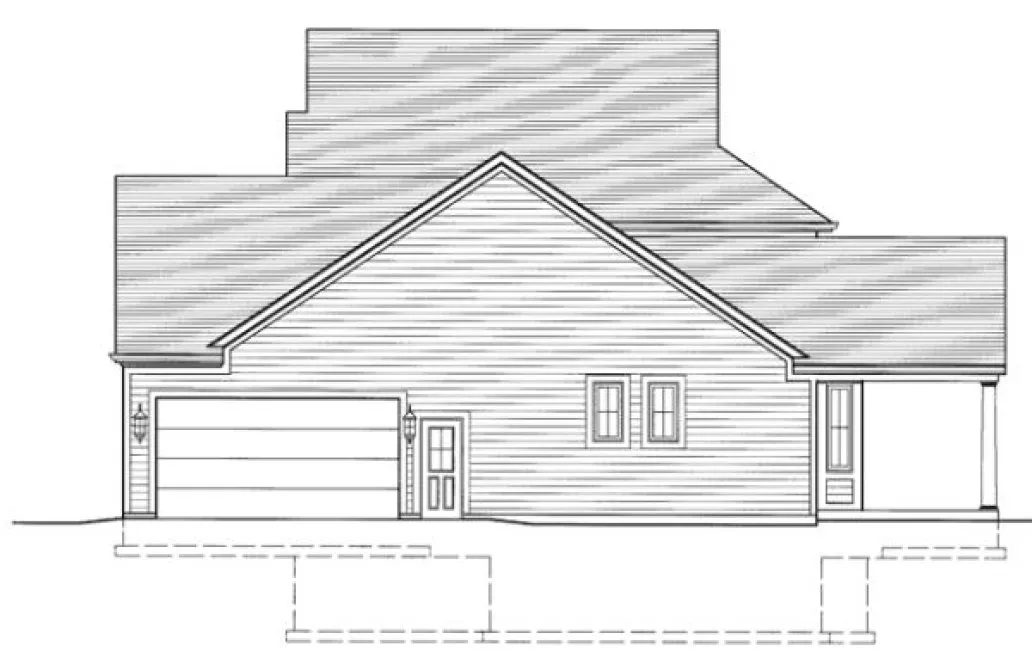
This two-story home with stone, shake and siding facade and a side entry two car garage presents a spectacular curb appeal to this family sized home. Trim detail and a copper roof enhance the beauty of the exterior. A nine foot first floor ceiling height is standard throughout with the great room and foyer ceilings soaring to a full two-story height. Columns and an arched opening frame the kitchen, and a boxed bay expands the breakfast area. A triple sliding glass door introduces light and invites the activities to continue to the rear covered porch. A deluxe master bedroom suite boasts of a whirlpool tub, double bowl vanity, shower and spacious walk-in closet. From the second floor balcony a dramatic view is showcased to the great room and foyer. A secondary bedroom with private bath makes a wonderful guest room.
Specifications
Total 2484 sq ft
- Main: 1710
- Second: 774
- Third: 0
- Loft/Bonus: 0
- Basement: 1710
- Garage: 504
Rooms
- Beds: 4
- Baths: 3
- 1/2 Bath: 1
- 3/4 Bath: 0
Ceiling Height
- Main: 9'0
- Second: 8'0
- Third:
- Loft/Bonus:
- Basement: 8'0
- Garage: 9'4
Details
- Exterior Walls: 2x4
- Garage Type: doubleGarage
- Width: 61'8
- Depth: 66'4
Roof
- Max Ridge Height: 31'0
- Comments: ()
- Primary Pitch: 0/12
- Secondary Pitch: 0/12

833–493–0942




