Plan No.538430
Universal Appeal
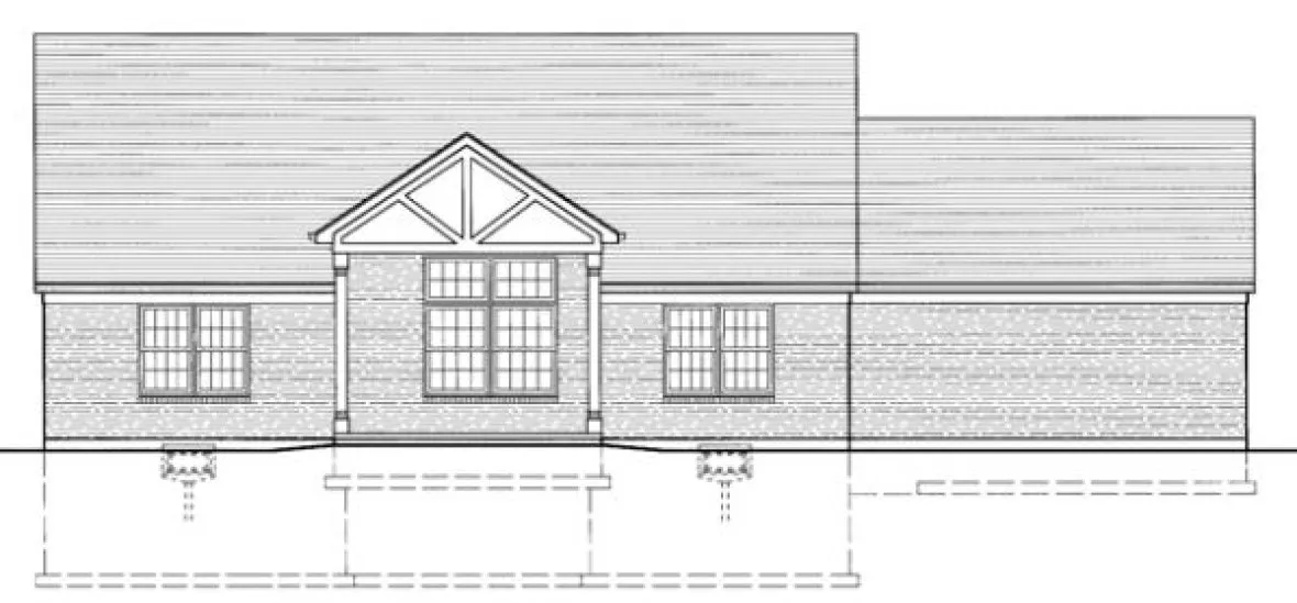
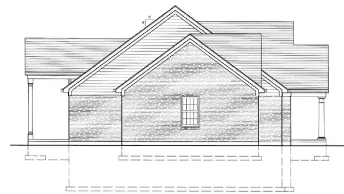
Multiple gables and a front porch decorate the exterior of this delightful all-brick home while the interior offers an open floor plan with varied ceiling heights. The great room showcases an 11' ceiling, a gas fireplace, a bar with seating, and a generous opening to the relaxed dining area. A galley kitchen is expanded by easy access to the garage and laundry room and a single door at the dining area offers convenience to the covered porch and rear yard. The option of creating a library off the foyer, or offering three bedrooms provides universal appeal. The large master bedroom with a 11' ceiling height and access to the covered porch add elegance to this private retreat. An open stair rail leads to a lower level which can be accessed for additional living space.
Specifications
Total 1648 sq ft
- Main: 1648
- Second: 0
- Third: 0
- Loft/Bonus: 0
- Basement: 1648
- Garage: 495
Rooms
- Beds: 3
- Baths: 2
- 1/2 Bath: 0
- 3/4 Bath: 0
Ceiling Height
- Main: 8'0
- Second:
- Third:
- Loft/Bonus:
- Basement: 8'0
- Garage: 8'0
Details
- Exterior Walls: 2x4
- Garage Type: doubleGarage
- Width: 69'0
- Depth: 50'10
Roof
- Max Ridge Height: 24'0
- Comments: ()
- Primary Pitch: 0/12
- Secondary Pitch: 0/12

833–493–0942


