Plan No.535130
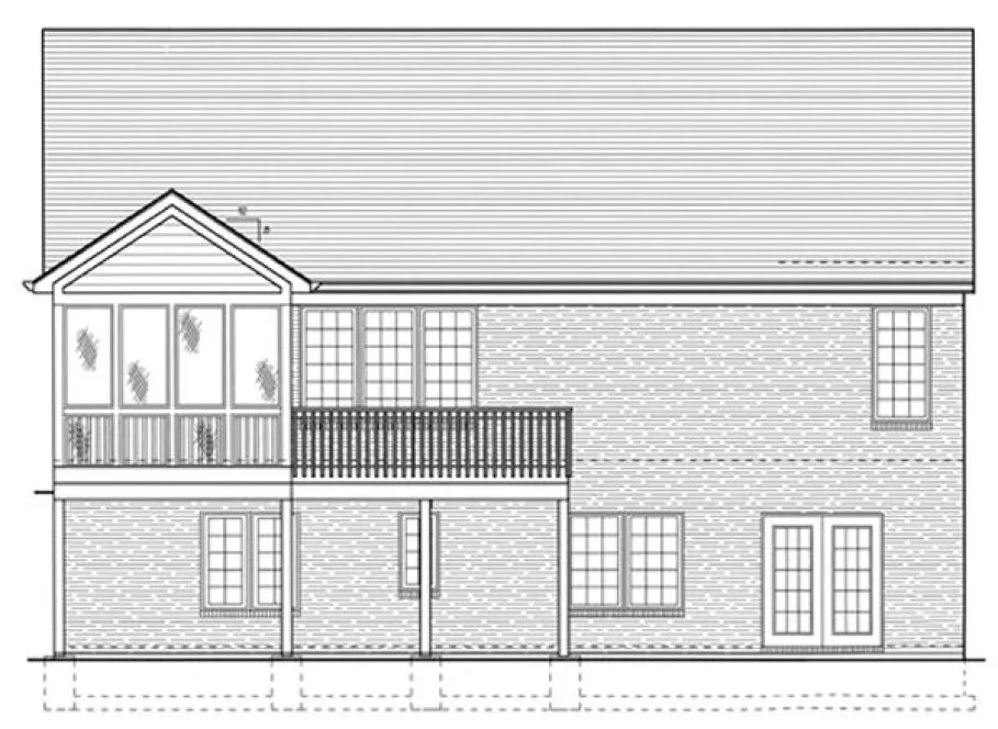
Charming Hillside Home
This charming one level home showcases an exciting facade with brick and stone materials and a courtyard garage. Designed for a narrow lot, the step saving interior combines the great room and dining area into a spacious gathering space. The vaulted center ceiling visually treats these two rooms as one, while the vaulted ceiling in the foyer adds richness to the entry. Seating at the counter provides for quick meals and an abundance of counter space and storage is provided in this efficient kitchen. The master bedroom, with tray ceiling and lavishly equipped bath, offers well-deserved luxury to the homeowner. Extra bedrooms and/or a library and game room, with wet bar, in the finished lower level, expand the livability of this delightful home.
Specifications
Total 2469 sq ft
- Main: 1462
- Second: 0
- Third: 0
- Loft/Bonus: 0
- Basement: 1007
- Garage: 585
Rooms
- Beds: 2
- Baths: 2
- 1/2 Bath: 1
- 3/4 Bath: 0
Ceiling Height
- Main: 9'1
- Second:
- Third:
- Loft/Bonus:
- Basement: 8'1
- Garage:
Details
- Exterior Walls: 2x4
- Garage Type: doubleGarage
- Width: 46'0
- Depth: 59'4
Roof
- Max Ridge Height: 22'6
- Comments: ()
- Primary Pitch: 0/12
- Secondary Pitch: 0/12

833–493–0942






