Plan No.531130
Casual Atmosphere
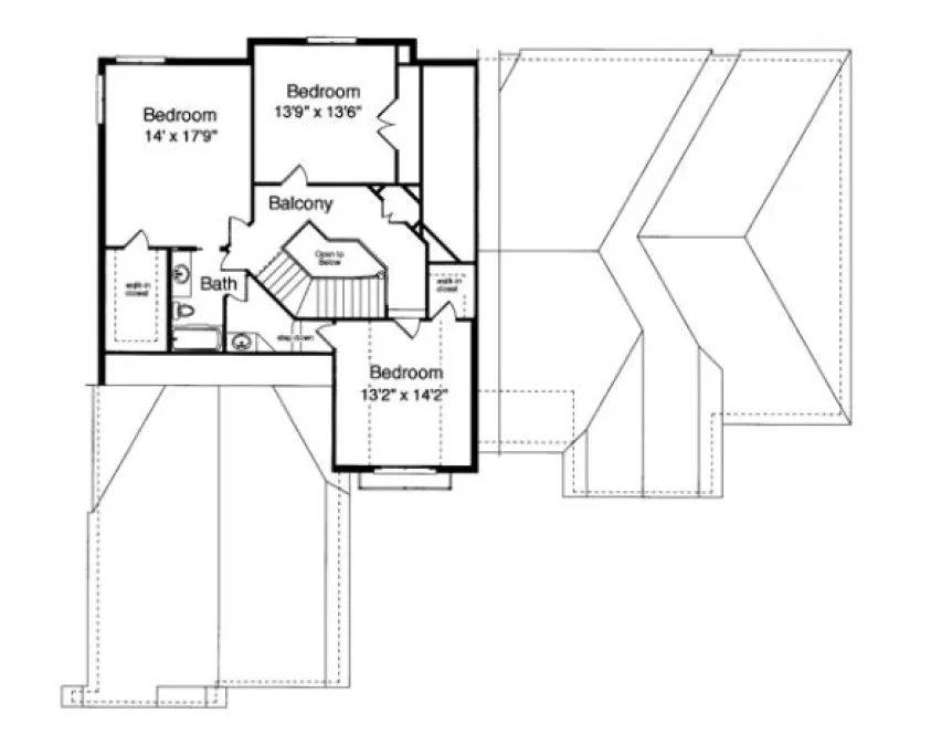
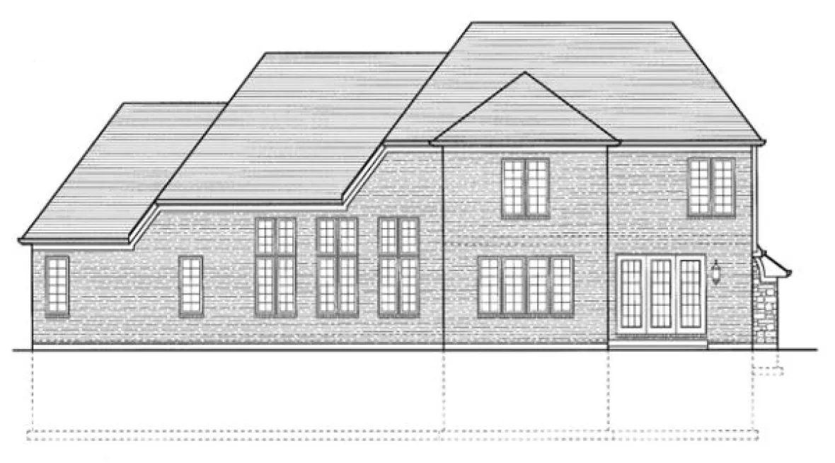
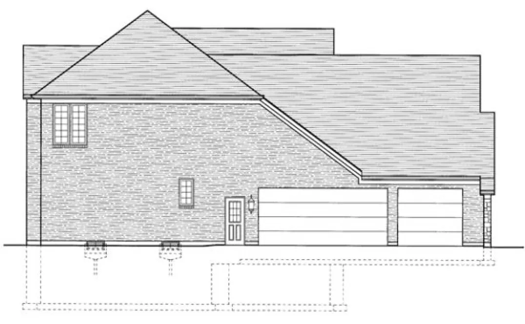
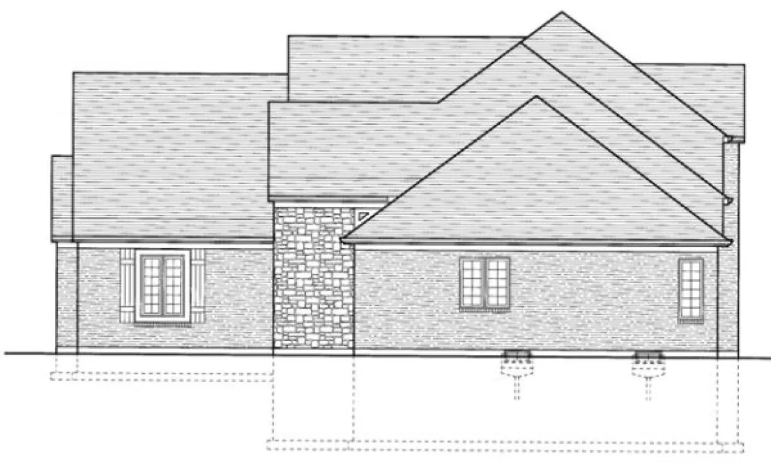
A varied roof line, multiple gables, and a brick and stone facade combine to create a European traditional motif to this wonderful two-story home. Designed for a casual atmosphere, the delightful pub and informal dining area invites family members and visitors to relax and enjoy the good times. Featuring beamed ceiling and an abundance of natural light it creates a pleasing transition between the gourmet kitchen and expansive great room. Visually open with a view to the great room fireplace and decorative columns the formal dining room offers the perfect surroundings for your dining pleasure. Boasting an extensive ceiling treatment the master bedroom suite showcases a whirlpool tub, double bowl vanity and large walk-in closet. A private library is located conveniently to the master suite for late night work at home. Three additional bedrooms each with large closets, complete this charming nine room countryside home.
Specifications
Total 3664 sq ft
- Main: 2497
- Second: 1167
- Third: 0
- Loft/Bonus: 0
- Basement: 2497
- Garage: 690
Rooms
- Beds: 4
- Baths: 2
- 1/2 Bath: 1
- 3/4 Bath: 0
Ceiling Height
- Main: 9'0
- Second: 8'0
- Third:
- Loft/Bonus:
- Basement: 8'0
- Garage: 10'4
Details
- Exterior Walls: 2x4
- Garage Type: tripleGarage
- Width: 74'10
- Depth: 65'0
Roof
- Max Ridge Height:
- Comments: ()
- Primary Pitch: 0/12
- Secondary Pitch: 0/12

833–493–0942








