Plan No.535820
Exciting Package
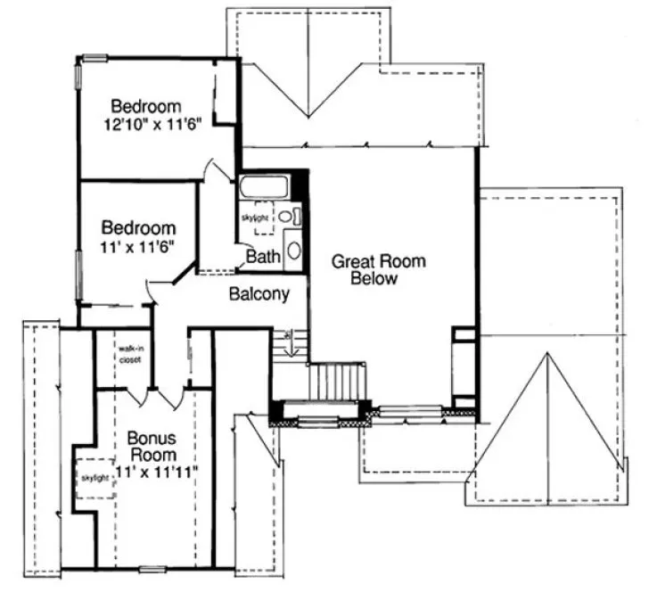
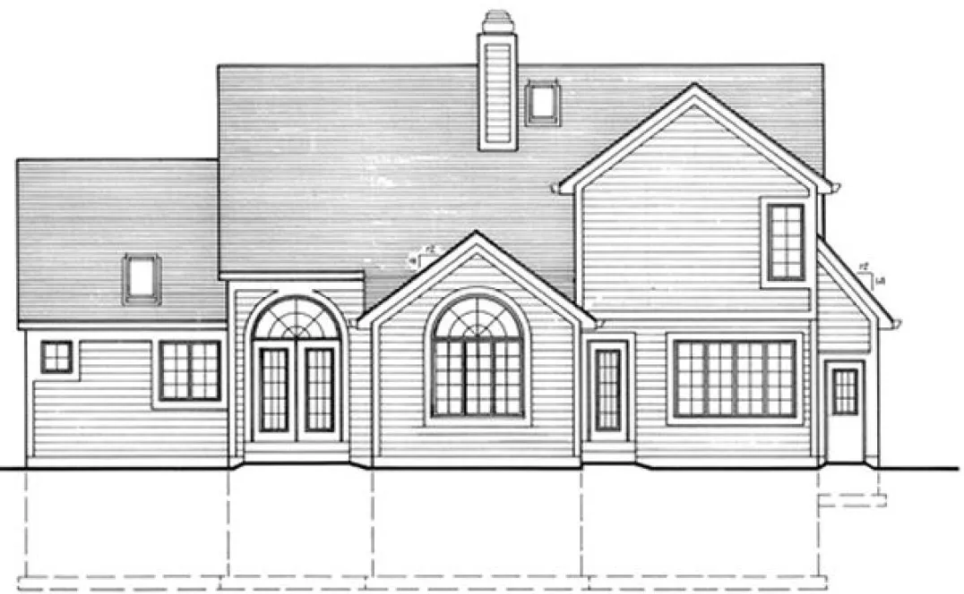
An attractive exterior with multiple gables, a covered porch and circle topped window creates an exciting package. The raised foyer introduces an open great room and dining area. Warmed by a dual-sided fireplace and windows to the rear and side, this spacious area creates an inviting gathering place. The large kitchen and breakfast area with an island and built-in desk caters to an orderly lifestyle. A sloped ceiling tops the master bedroom while the luxurious bath pampers the homeowner. A second floor balcony leads to two bedrooms and bonus room, completing this beautiful home.
Specifications
Total 2156 sq ft
- Main: 1605
- Second: 551
- Third: 0
- Loft/Bonus: 0
- Basement: 1605
- Garage: 484
Rooms
- Beds: 3
- Baths: 2
- 1/2 Bath: 1
- 3/4 Bath: 0
Ceiling Height
- Main: 8'0
- Second: 8'0
- Third:
- Loft/Bonus:
- Basement: 8'0
- Garage: 9'4
Details
- Exterior Walls: 2x4
- Garage Type: doubleGarage
- Width: 56'0
- Depth: 53'0
Roof
- Max Ridge Height:
- Comments: ()
- Primary Pitch: 0/12
- Secondary Pitch: 0/12
Add to Cart
Pricing
– westhomeplanners.com
– westhomeplanners.com
– westhomeplanners.com
– westhomeplanners.com
– westhomeplanners.com
[Back to Search Results]

833–493–0942



